セットアップオフィス
新耐震
CIRCLES日本橋小伝馬町
4階(東京都中央区日本橋小伝馬町)
セットアップオフィス
新耐震
CIRCLES日本橋小伝馬町
4階(東京都中央区日本橋小伝馬町)
- 賃料(坪単価):
- 相談(@―)
- 共益費(坪単価)
- :
- 賃料に含む (@―)
- 預託金(保証金/敷金)
- :
- ―(8ヶ月)
- 面積
- :
- 69.41坪 (229.47m²)
- 所在地
- :
- 東京都中央区日本橋小伝馬町107-2他(地番)
- 最寄駅
- :
-
小伝馬町駅まで徒歩1分
馬喰町駅まで徒歩5分
馬喰横山駅まで徒歩7分
東日本橋駅まで徒歩10分
神田駅まで徒歩12分
物件情報
所在地・アクセス
- 物件名
- CIRCLES日本橋小伝馬町 4階
- 所在地
- 東京都中央区日本橋小伝馬町107-2他(地番)
- 最寄駅
-
東京メトロ日比谷線 小伝馬町駅まで徒歩1分
JR総武線快速 馬喰町駅まで徒歩5分
都営新宿線 馬喰横山駅まで徒歩7分
都営浅草線 東日本橋駅まで徒歩10分
JR中央線快速 神田駅まで徒歩12分
賃貸条件
- 賃料(坪単価)
- 相談(@―)
- 礼 金
- 無
- 共益費(坪単価)
- 賃料に含む(@―)
- 面 積
- 69.41坪 (229.47m²)
- 賃料+共益費(坪単価)
- 相談 (@―)
- 償 却
- 無
- 預託金(保証金/敷金)
- ―(8ヶ月)
- 入居可能日
- 2026年5月1日予定
- 更新料(再契約料)
- 無
- 契約期間
- 2年
物件概要
- 特 徴
- 構 造
- 鉄骨造/新耐震
- 物件タイプ
- 事務所
- 規 模
- 8階建
- 取引態様
- 一般媒介
- 竣 工
- 2026年4月竣工予定
- 設 備
-
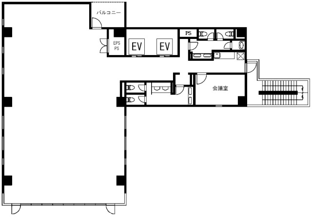
E V :2基(11人乗)、天井高:備考参照㎜、床仕様:OAフロア(H=40mm)、空調:個別空調、トイレ:専用 男女別 洋式
その他:機械警備、駐車場設備あり
- 備 考
-
■貸室面積には、トイレ・給湯室等の面積が含まれます。 ■電気容量:50VA/㎡ ■机上平均照度:500Lx ■天井高⇒スケルトン天井:3,295~3,430mm、会議室:2,500mm
注) 上記の価格には、別途、消費税及び地方消費税が課されます。
消費税率が変更された場合には、以後、変更後の税率が課されることとなります。
物件情報更新日:2026-04-02
お気軽にお問合せください
現在募集中の区画
- 階数
- 面積
- 賃料
- 共益費
- 間取図
- HOME
- >
- エリアから探す
- >
- 中央区
- >
- 小伝馬町・東日本橋・日本橋浜町
- >
- CIRCLES日本橋小伝馬町
- >
- CIRCLES日本橋小伝馬町 4階
