当社貸主物件
セットアップオフィス
新耐震
FRAME日本橋
7階B室(東京都中央区日本橋久松町)
当社貸主物件
セットアップオフィス
新耐震
FRAME日本橋
7階B室(東京都中央区日本橋久松町)
- 賃料(坪単価):
- 相談(@―)
- 共益費(坪単価)
- :
- 相談 (@―)
- 預託金(保証金/敷金)
- :
- ―(相談)
- 面積
- :
- 64.66坪 (213.74m²)
- 所在地
- :
- 東京都中央区日本橋久松町9-9
- 最寄駅
- :
-
浜町駅まで徒歩3分
東日本橋駅まで徒歩4分
馬喰横山駅まで徒歩4分
人形町駅まで徒歩5分
水天宮前駅まで徒歩10分
スタッフコメント
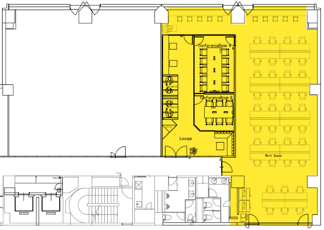
徒歩10分圏内で5駅・4路線利用可能。清洲橋通り沿いに位置し視認性良好。2020年6月に大規模リニューアル工事実施済(外観・エントランス・ファサード)の物件を紹介させて頂きます。この場所で働く従業員の皆様のモチベーションを高める、高級感あふれるリニューアルを施しております。エントランスは鏡を利用し大きく品格のある空間で従業員の皆様・お客様をお出迎えします。二面彩光で柔らかく光が差し込む貸室は、坪数以上に開放的に感じられる執務空間となっております。また、細かく空調や電気(LED)が分かれているため、間仕切り工事等を行う上で便利なつくりとなっております。
担当:坂江 あかね 支店:日本橋店 更新日:2026年4月24日
物件情報
所在地・アクセス
- 物件名
- FRAME日本橋 7階B室
- 所在地
- 東京都中央区日本橋久松町9-9
- 最寄駅
-
都営新宿線 浜町駅まで徒歩3分
都営浅草線 東日本橋駅まで徒歩4分
都営新宿線 馬喰横山駅まで徒歩4分
東京メトロ日比谷線 人形町駅まで徒歩5分
東京メトロ半蔵門線 水天宮前駅まで徒歩10分
賃貸条件
- 賃料(坪単価)
- 相談(@―)
- 礼 金
- 無
- 共益費(坪単価)
- 相談(@―)
- 面 積
- 64.66坪 (213.74m²)
- 賃料+共益費(坪単価)
- 相談 (@―)
- 償 却
- 無
- 預託金(保証金/敷金)
- ―(相談)
- 入居可能日
- 2026年5月中旬予定
- 更新料(再契約料)
- 無
- 契約期間
- 2年
物件概要
- 特 徴
- 構 造
- 鉄骨鉄筋コンクリート造/新耐震
- 物件タイプ
- 事務所
- 規 模
- 地下1階付9階建
- 取引態様
- 貸主
- 竣 工
- 1989年7月
- 設 備
-
E V :2基、天井高:2700㎜、床仕様:OAフロア、空調:個別空調、トイレ:共用 男女別 洋式
その他:機械警備
- 備 考
-
※リニューアル工事中のため、契約面積や設備等変更となる可能性がございますので、予めご了承ください。 ■2020年6月、大規模リニューアル工事完了(外観、エントランス、ファサード)■2026年5月、内装造作付きセットアップ工事完了予定(受付・ラウンジ・10名用・6名用会議室付)※会議室は什器設置予定 ■貸室面積には、EVホール・トイレ・給湯室等の面積が含まれます。 ■貸主指定の保証会社と保証委託契約を締結していただきます。
注) 上記の価格には、別途、消費税及び地方消費税が課されます。
消費税率が変更された場合には、以後、変更後の税率が課されることとなります。
物件情報更新日:2026-04-23
お気軽にお問合せください
現在募集中の区画
- 階数
- 面積
- 賃料
- 共益費
- 間取図
- HOME
- >
- エリアから探す
- >
- 中央区
- >
- 小伝馬町・東日本橋・日本橋浜町
- >
- FRAME日本橋
- >
- FRAME日本橋 7階B室
