新耐震
武蔵小金井一棟ビル
1棟(東京都小金井市桜町)
新耐震
武蔵小金井一棟ビル
1棟(東京都小金井市桜町)
- 賃料(坪単価):
- 相談(@―)
- 共益費(坪単価)
- :
- 相談 (@―)
- 預託金(保証金/敷金)
- :
- ―(6ヶ月)
- 面積
- :
- 301.11坪 (995.42m²)
- 所在地
- :
- 東京都小金井市桜町2-11-25
- 最寄駅
- :
-
武蔵小金井駅まで徒歩15分
物件情報
所在地・アクセス
- 物件名
- 武蔵小金井一棟ビル 1棟
- 所在地
- 東京都小金井市桜町2-11-25
- 最寄駅
-
JR中央線 武蔵小金井駅まで徒歩15分
賃貸条件
- 賃料(坪単価)
- 相談(@―)
- 礼 金
- 無
- 共益費(坪単価)
- 相談(@―)
- 面 積
- 301.11坪 (995.42m²)
- 賃料+共益費(坪単価)
- 相談 (@―)
- 償 却
- 無
- 預託金(保証金/敷金)
- ―(6ヶ月)
- 入居可能日
- 未定
- 更新料(再契約料)
- 無
- 契約期間
- 年相談(定借)
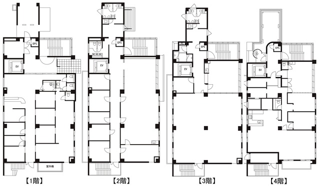
物件概要
- 特 徴
- 構 造
- 鉄筋コンクリート造/新耐震
- 物件タイプ
- 店舗・事務所
- 規 模
- 4階建
- 取引態様
- 一般媒介
- 竣 工
- 2007年7月
- 設 備
-
E V :あり、天井高:―㎜、床仕様:―、空調:個別空調、トイレ: 男女別 洋式
- 備 考
-
■1フロアごとの分割も相談可能 ■引渡し:現況有姿(1階~3階は医療系店舗居抜き、4階は住居仕様) ■SFビルサポート株式会社と保証委託契約を締結していただきます。 ※与信状況によって預託金額が変動する場合がございます。
注) 上記の価格には、別途、消費税及び地方消費税が課されます。
消費税率が変更された場合には、以後、変更後の税率が課されることとなります。
物件情報更新日:2026-03-05
お気軽にお問合せください
