フサカビル
3階(東京都豊島区南大塚)
フサカビル
3階(東京都豊島区南大塚)
- 賃料(坪単価):
- 629,875円(@12,500円)
- 共益費(坪単価)
- :
- 50,000円 (@―)
- 預託金(保証金/敷金)
- :
- 1,889,625円(3ヶ月)
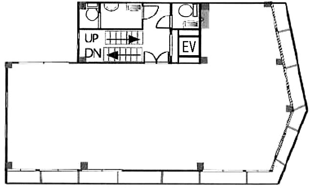
- 面積
- :
- 50.39坪 (166.57m²)
- 所在地
- :
- 東京都豊島区南大塚3-44-11
- 最寄駅
- :
-
大塚駅まで徒歩2分
向原駅まで徒歩5分
新大塚駅まで徒歩5分
東池袋駅まで徒歩15分
巣鴨駅まで徒歩15分
物件情報
所在地・アクセス
- 物件名
- フサカビル 3階
- 所在地
- 東京都豊島区南大塚3-44-11
- 最寄駅
-
JR山手線 大塚駅まで徒歩2分
東京さくらトラム(都電荒川線) 向原駅まで徒歩5分
東京メトロ丸ノ内線 新大塚駅まで徒歩5分
東京メトロ有楽町線 東池袋駅まで徒歩15分
JR山手線 巣鴨駅まで徒歩15分
賃貸条件
- 賃料(坪単価)
- 629,875円(@12,500円)
- 礼 金
- 賃料の1ヶ月分
- 共益費(坪単価)
- 50,000円(@―)
- 面 積
- 50.39坪 (166.57m²)
- 賃料+共益費(坪単価)
- 679,875円 (@12,500円)
- 償 却
- 賃料の2ヶ月分
- 預託金(保証金/敷金)
- 1,889,625円(3ヶ月)
- 入居可能日
- 即日
- 更新料(再契約料)
- 新賃料の1ヶ月分
- 契約期間
- 3年
物件概要
- 特 徴
- 構 造
- 鉄筋コンクリート造
- 物件タイプ
- 店舗・事務所
- 規 模
- 7階建
- 取引態様
- 一般媒介
- 竣 工
- 1969年10月
- 設 備
-
E V :1基(7人乗)、天井高:―㎜、床仕様:―、空調:―、トイレ:共用 男女別 洋式
- 備 考
-
■貸室面積には、トイレ・共用廊下等の面積が含まれます。 ■店舗使用の場合⇒敷金:賃料の6ヶ月分 ■更新時事務手数料:新賃料の0.25ヶ月分 ■貸主指定の火災保険にご加入いただきます。 ■貸主指定の保証会社と保証委託契約を締結していただきます。
注) 上記の価格には、別途、消費税及び地方消費税が課されます。
消費税率が変更された場合には、以後、変更後の税率が課されることとなります。
物件情報更新日:2026-04-09
お気軽にお問合せください
