新耐震
品川シーサイドパークタワー
4階(東京都品川区東品川)
新耐震
品川シーサイドパークタワー
4階(東京都品川区東品川)
- 賃料(坪単価):
- 相談(@―)
- 共益費(坪単価)
- :
- 相談 (@―)
- 預託金(保証金/敷金)
- :
- 相談(―)
- 面積
- :
- 505.40坪 (1670.75m²)
- 所在地
- :
- 東京都品川区東品川4-12-4
- 最寄駅
- :
-
品川シーサイド駅まで徒歩4分
青物横丁駅まで徒歩8分
鮫洲駅まで徒歩14分
物件情報
所在地・アクセス
- 物件名
- 品川シーサイドパークタワー 4階
- 所在地
- 東京都品川区東品川4-12-4
- 最寄駅
-
りんかい線 品川シーサイド駅まで徒歩4分
京急本線 青物横丁駅まで徒歩8分
京急本線 鮫洲駅まで徒歩14分
賃貸条件
- 賃料(坪単価)
- 相談(@―)
- 礼 金
- 相談
- 共益費(坪単価)
- 相談(@―)
- 面 積
- 505.40坪 (1670.75m²)
- 賃料+共益費(坪単価)
- 相談 (@―)
- 償 却
- 相談
- 預託金(保証金/敷金)
- 相談(―)
- 入居可能日
- 相談
- 更新料(再契約料)
- 相談
- 契約期間
- 相談
物件概要
- 特 徴
- 構 造
- S造、一部SRC造、RC造/新耐震
- 物件タイプ
- 事務所
- 規 模
- 地下2階付23階建
- 取引態様
- 一般媒介
- 竣 工
- 2003年7月
- 設 備
-
E V :乗用:11基、人荷・非常用:2基、天井高:2700㎜、床仕様:OAフロア(H=100mm)、空調:セントラル、トイレ:共用 男女別 洋式
その他:機械警備、有人警備、駐車場設備あり
- 備 考
- お問い合わせください。
物件情報更新日:2026-01-21
お気軽にお問合せください
現在募集中の区画
- 階数
- 面積
- 賃料
- 共益費
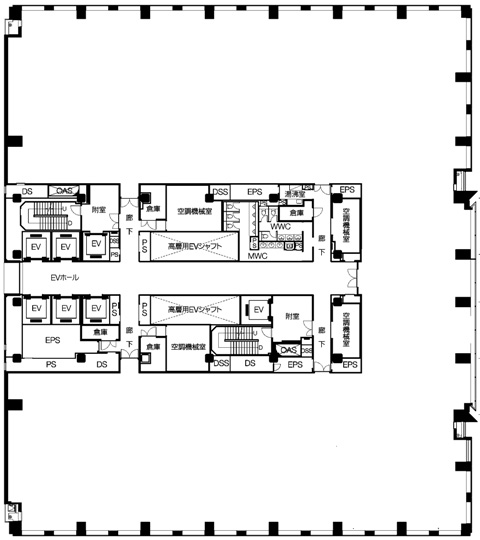
- 間取図
- HOME
- >
- エリアから探す
- >
- 品川区
- >
- 品川・大崎・五反田
- >
- 品川シーサイドパークタワー
- >
- 品川シーサイドパークタワー 4階
