新耐震
K.Tビル
6階(東京都台東区東上野)
新耐震
K.Tビル
6階(東京都台東区東上野)
- 賃料(坪単価):
- 643,200円(@12,000円)
- 共益費(坪単価)
- :
- 107,200円 (@2,000円)
- 預託金(保証金/敷金)
- :
- 5,145,600円(8ヶ月)
- 面積
- :
- 53.60坪 (177.22m²)
- 所在地
- :
- 東京都台東区東上野4-12-1
- 最寄駅
- :
-
上野駅まで徒歩3分
上野駅まで徒歩3分
上野駅まで徒歩3分
上野駅まで徒歩3分
稲荷町駅まで徒歩5分
物件情報
所在地・アクセス
- 物件名
- K.Tビル 6階
- 所在地
- 東京都台東区東上野4-12-1
- 最寄駅
-
JR山手線 上野駅まで徒歩3分
東京メトロ日比谷線 上野駅まで徒歩3分
東京メトロ銀座線 上野駅まで徒歩3分
JR京浜東北線 上野駅まで徒歩3分
東京メトロ銀座線 稲荷町駅まで徒歩5分
賃貸条件
- 賃料(坪単価)
- 643,200円(@12,000円)
- 礼 金
- 無
- 共益費(坪単価)
- 107,200円(@2,000円)
- 面 積
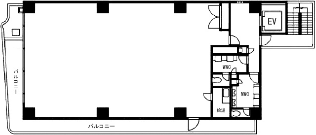
- 53.60坪 (177.22m²)
- 賃料+共益費(坪単価)
- 750,400円 (@14,000円)
- 償 却
- 賃料の2ヶ月分
- 預託金(保証金/敷金)
- 5,145,600円(8ヶ月)
- 入居可能日
- 相談
- 更新料(再契約料)
- 新賃料の1ヶ月分
- 契約期間
- 2年
物件概要
- 特 徴
- 構 造
- 鉄骨鉄筋コンクリート造/新耐震
- 物件タイプ
- 事務所
- 規 模
- 7階建
- 取引態様
- 一般媒介
- 竣 工
- 1993年8月
- 設 備
-
E V :1基(11人乗)、天井高:―㎜、床仕様:OAフロア、空調:個別空調、トイレ:専用 男女別 洋式
その他:エントランスセキュリティ
- 備 考
-
■ゴミ代:月額8,000円 ■エントランス開放時間:8:00~20:00 ※左記時間帯以外はテンキー操作にて入退館可能 ■貸主指定の保証会社(アース保証)と保証委託契約を締結していただきます。
注) 上記の価格には、別途、消費税及び地方消費税が課されます。
消費税率が変更された場合には、以後、変更後の税率が課されることとなります。
物件情報更新日:2026-04-17
お気軽にお問合せください
- HOME
- >
- エリアから探す
- >
- 台東区
- >
- 上野・御徒町・秋葉原
- >
- K.Tビル
- >
- K.Tビル 6階
