新耐震
麹町クリスタルシティ 東館
11階(東京都千代田区麹町)
新耐震
麹町クリスタルシティ 東館
11階(東京都千代田区麹町)
- 賃料(坪単価):
- 相談(@―)
- 共益費(坪単価)
- :
- 647,882円 (@4,100円)
- 預託金(保証金/敷金)
- :
- ―(12ヶ月)
- 面積
- :
- 158.02坪 (522.37m²)
- 所在地
- :
- 東京都千代田区麹町4-8-1
- 最寄駅
- :
-
麹町駅まで徒歩1分
半蔵門駅まで徒歩6分
永田町駅まで徒歩8分
四ツ谷駅まで徒歩9分
赤坂見附駅まで徒歩11分
物件情報
所在地・アクセス
- 物件名
- 麹町クリスタルシティ 東館 11階
- 所在地
- 東京都千代田区麹町4-8-1
- 最寄駅
-
東京メトロ有楽町線 麹町駅まで徒歩1分
東京メトロ半蔵門線 半蔵門駅まで徒歩6分
東京メトロ南北線 永田町駅まで徒歩8分
JR中央線快速 四ツ谷駅まで徒歩9分
東京メトロ銀座線 赤坂見附駅まで徒歩11分
賃貸条件
- 賃料(坪単価)
- 相談(@―)
- 礼 金
- 無
- 共益費(坪単価)
- 647,882円(@4,100円)
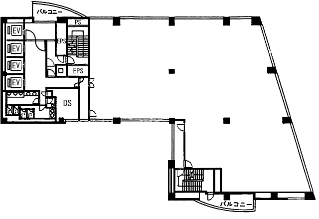
- 面 積
- 158.02坪 (522.37m²)
- 賃料+共益費(坪単価)
- 相談 (@―)
- 償 却
- 無
- 預託金(保証金/敷金)
- ―(12ヶ月)
- 入居可能日
- 2026年2月1日予定
- 更新料(再契約料)
- 無
- 契約期間
- 2年
物件概要
- 特 徴
- 構 造
- 鉄骨鉄筋コンクリート造/新耐震
- 物件タイプ
- 事務所
- 規 模
- 地下2階付14階建
- 取引態様
- 一般媒介
- 竣 工
- 1992年9月
- 設 備
-
E V :4基、天井高:2550㎜、床仕様:OAフロア(H=50mm)、空調:個別空調、トイレ: 男女別 洋式
その他:機械警備、有人警備、駐車場設備あり
- 備 考
-
■床荷重:300㎏/㎡(2,900N/㎡) ■コンセント容量:40VA/㎡ ■EV⇒乗用:3基(15人乗)、非常用:1基(17人乗) ■エントランス・北側連絡口開放時間:全日7:00~24:00 ■地下鉄連絡口開放時間:全日7:00~23:00
注) 上記の価格には、別途、消費税及び地方消費税が課されます。
消費税率が変更された場合には、以後、変更後の税率が課されることとなります。
物件情報更新日:2026-01-15
お気軽にお問合せください
現在募集中の区画
- 階数
- 面積
- 賃料
- 共益費
- 間取図
- HOME
- >
- エリアから探す
- >
- 千代田区
- >
- 市ヶ谷・番町・麹町
- >
- 麹町クリスタルシティ 東館
- >
- 麹町クリスタルシティ 東館 11階
