新耐震
QV1麹町 (旧:NK真和ビル)
8階(東京都千代田区麹町)
新耐震
QV1麹町 (旧:NK真和ビル)
8階(東京都千代田区麹町)
- 賃料(坪単価):
- 相談(@―)
- 共益費(坪単価)
- :
- 相談 (@―)
- 預託金(保証金/敷金)
- :
- 相談(―)
- 面積
- :
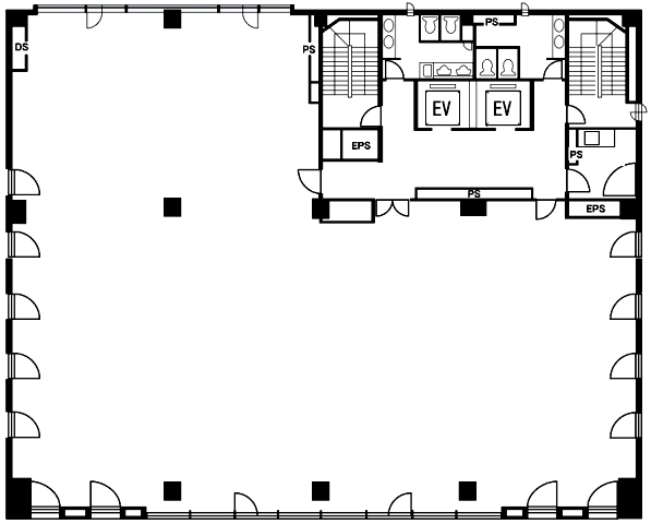
- 157.09坪 (519.32m²)
- 所在地
- :
- 東京都千代田区麹町5-1
- 最寄駅
- :
-
麹町駅まで徒歩3分
四ツ谷駅まで徒歩6分
四ツ谷駅まで徒歩6分
四ツ谷駅まで徒歩6分
半蔵門駅まで徒歩8分
物件情報
所在地・アクセス
- 物件名
- QV1麹町 (旧:NK真和ビル) 8階
- 所在地
- 東京都千代田区麹町5-1
- 最寄駅
-
東京メトロ有楽町線 麹町駅まで徒歩3分
JR中央線快速 四ツ谷駅まで徒歩6分
東京メトロ丸ノ内線 四ツ谷駅まで徒歩6分
東京メトロ南北線 四ツ谷駅まで徒歩6分
東京メトロ半蔵門線 半蔵門駅まで徒歩8分
賃貸条件
- 賃料(坪単価)
- 相談(@―)
- 礼 金
- 相談
- 共益費(坪単価)
- 相談(@―)
- 面 積
- 157.09坪 (519.32m²)
- 賃料+共益費(坪単価)
- 相談 (@―)
- 償 却
- 相談
- 預託金(保証金/敷金)
- 相談(―)
- 入居可能日
- 相談
- 更新料(再契約料)
- 相談
- 契約期間
- 相談
物件概要
- 特 徴
- 構 造
- 鉄骨造(一部鉄筋コンクリート造)/新耐震
- 物件タイプ
- 事務所
- 規 模
- 地下1階付9階建
- 取引態様
- 一般媒介
- 竣 工
- 1993年9月
- 設 備
-
E V :2基(15人乗)、天井高:2500㎜、床仕様:OAフロア(H=100mm)、空調:個別空調、トイレ: 男女別 洋式
その他:機械警備、駐車場設備あり
- 備 考
- お問い合わせください。
物件情報更新日:2026-01-07
お気軽にお問合せください
- HOME
- >
- エリアから探す
- >
- 千代田区
- >
- 市ヶ谷・番町・麹町
- >
- QV1麹町 (旧:NK真和ビル)
- >
- QV1麹町 (旧:NK真和ビル) 8階
