新耐震
明海京橋ビル
5階(東京都中央区京橋)
新耐震
明海京橋ビル
5階(東京都中央区京橋)
- 賃料(坪単価):
- 990,760円(@17,000円)
- 共益費(坪単価)
- :
- 174,840円 (@3,000円)
- 預託金(保証金/敷金)
- :
- 9,907,600円(10ヶ月)
- 面積
- :
- 58.28坪 (192.67m²)
- 所在地
- :
- 東京都中央区京橋2-18-2
- 最寄駅
- :
-
宝町駅まで徒歩1分
京橋駅まで徒歩4分
八丁堀駅まで徒歩6分
八丁堀駅まで徒歩6分
東京駅まで徒歩9分
物件情報
所在地・アクセス
- 物件名
- 明海京橋ビル 5階
- 所在地
- 東京都中央区京橋2-18-2
- 最寄駅
-
都営浅草線 宝町駅まで徒歩1分
東京メトロ銀座線 京橋駅まで徒歩4分
東京メトロ日比谷線 八丁堀駅まで徒歩6分
JR京葉線 八丁堀駅まで徒歩6分
JR山手線 東京駅まで徒歩9分
賃貸条件
- 賃料(坪単価)
- 990,760円(@17,000円)
- 礼 金
- 無
- 共益費(坪単価)
- 174,840円(@3,000円)
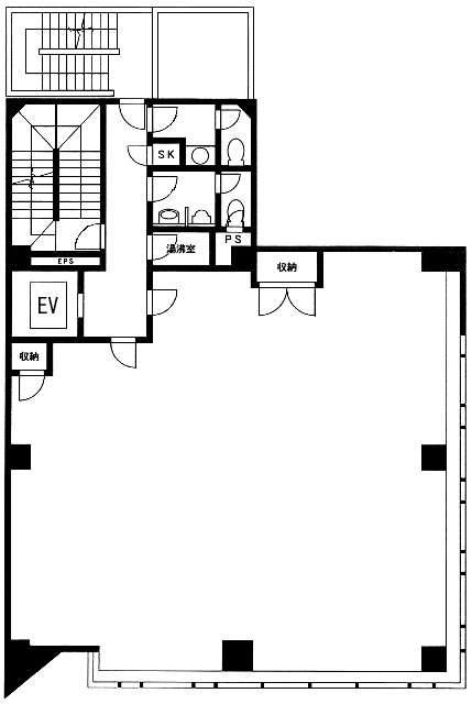
- 面 積
- 58.28坪 (192.67m²)
- 賃料+共益費(坪単価)
- 1,165,600円 (@20,000円)
- 償 却
- 無
- 預託金(保証金/敷金)
- 9,907,600円(10ヶ月)
- 入居可能日
- 即日
- 更新料(再契約料)
- 無
- 契約期間
- 2年
物件概要
- 特 徴
- 構 造
- 鉄骨鉄筋コンクリート造/新耐震
- 物件タイプ
- 事務所
- 規 模
- 地下1階付8階建
- 取引態様
- 一般媒介
- 竣 工
- 1985年5月
- 設 備
-
E V :1基(9人乗)、天井高:2500㎜、床仕様:OAフロア、空調:個別空調、トイレ:専用 男女別 洋式
その他:機械警備、エントランスセキュリティ
- 備 考
-
■貸室面積には、一部共用部の面積が含まれます。 ■袖看板費:月額10,000円 ■床荷重:300㎏/㎡ ■貸主指定の火災保険にご加入いただきます。
注) 上記の価格には、別途、消費税及び地方消費税が課されます。
消費税率が変更された場合には、以後、変更後の税率が課されることとなります。
物件情報更新日:2025-10-22
お気軽にお問合せください
- HOME
- >
- エリアから探す
- >
- 中央区
- >
- 八重洲・京橋・日本橋
- >
- 明海京橋ビル
- >
- 明海京橋ビル 5階
