清話会ビル
6階A室(東京都千代田区神田三崎町)
清話会ビル
6階A室(東京都千代田区神田三崎町)
- 賃料(坪単価):
- 704,200円(@14,000円)
- 共益費(坪単価)
- :
- 賃料に含む (@―)
- 預託金(保証金/敷金)
- :
- 5,633,600円(8ヶ月)
- 面積
- :
- 50.30坪 (166.28m²)
- 所在地
- :
- 東京都千代田区神田三崎町3-7-12
- 最寄駅
- :
-
水道橋駅まで徒歩1分
水道橋駅まで徒歩7分
飯田橋駅まで徒歩8分
飯田橋駅まで徒歩8分
飯田橋駅まで徒歩8分
物件情報
所在地・アクセス
- 物件名
- 清話会ビル 6階A室
- 所在地
- 東京都千代田区神田三崎町3-7-12
- 最寄駅
-
JR中央線 水道橋駅まで徒歩1分
都営三田線 水道橋駅まで徒歩7分
東京メトロ東西線 飯田橋駅まで徒歩8分
東京メトロ南北線 飯田橋駅まで徒歩8分
東京メトロ有楽町線 飯田橋駅まで徒歩8分
賃貸条件
- 賃料(坪単価)
- 704,200円(@14,000円)
- 礼 金
- 無
- 共益費(坪単価)
- 賃料に含む(@―)
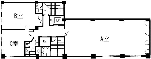
- 面 積
- 50.30坪 (166.28m²)
- 賃料+共益費(坪単価)
- 704,200円 (@14,000円)
- 償 却
- 賃料の1ヶ月分
- 預託金(保証金/敷金)
- 5,633,600円(8ヶ月)
- 入居可能日
- 2026年4月中旬予定
- 更新料(再契約料)
- 新賃料の1ヶ月分
- 契約期間
- 2年(定借)
物件概要
物件情報更新日:2026-03-17
お気軽にお問合せください
- HOME
- >
- エリアから探す
- >
- 千代田区
- >
- 水道橋・飯田橋・神保町
- >
- 清話会ビル
- >
- 清話会ビル 6階A室
