HOME
>
エリアから探す
>
中央区
>
築地・新富・八丁堀・入船
>
八丁堀サンケイビル (旧:TOKYU REIT八丁堀ビル)
>
八丁堀サンケイビル (旧:TOKYU REIT八丁堀ビル) 4階
新耐震基準適合
八丁堀サンケイビル (旧:TOKYU REIT八丁堀ビル)
4階(東京都中央区八丁堀)
新耐震基準適合
八丁堀サンケイビル (旧:TOKYU REIT八丁堀ビル)
4階(東京都中央区八丁堀)
- 賃料(坪単価):
- 相談(@―)
- 共益費(坪単価)
- :
- 賃料に含む (@―)
- 預託金(保証金/敷金)
- :
- ―(12ヶ月)
- 面積
- :
- 212.93坪 (703.90m²)
- 所在地
- :
- 東京都中央区八丁堀2-7-1
- 最寄駅
- :
-
八丁堀駅まで徒歩3分
八丁堀駅まで徒歩5分
宝町駅まで徒歩5分
茅場町駅まで徒歩5分
新富町駅まで徒歩9分
物件情報
所在地・アクセス
- 物件名
- 八丁堀サンケイビル (旧:TOKYU REIT八丁堀ビル) 4階
- 所在地
- 東京都中央区八丁堀2-7-1
- 最寄駅
-
東京メトロ日比谷線 八丁堀駅まで徒歩3分
JR京葉線 八丁堀駅まで徒歩5分
都営浅草線 宝町駅まで徒歩5分
東京メトロ東西線 茅場町駅まで徒歩5分
東京メトロ有楽町線 新富町駅まで徒歩9分
賃貸条件
- 賃料(坪単価)
- 相談(@―)
- 礼 金
- 無
- 共益費(坪単価)
- 賃料に含む(@―)
- 面 積
- 212.93坪 (703.90m²)
- 賃料+共益費(坪単価)
- 相談 (@―)
- 償 却
- 無
- 預託金(保証金/敷金)
- ―(12ヶ月)
- 入居可能日
- 2026年3月1日予定
- 更新料(再契約料)
- 無
- 契約期間
- 3~5年(定借)
物件概要
- 特 徴
- 構 造
- 鉄骨鉄筋コンクリート造/新耐震基準適合
- 物件タイプ
- 事務所
- 規 模
- 地下2階付9階建
- 取引態様
- 一般媒介
- 竣 工
- 1965年9月
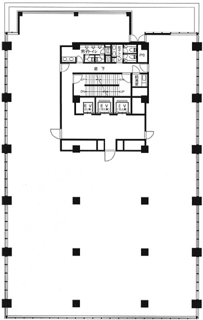
- 設 備
-
E V :4基、天井高:―㎜、床仕様:―、空調:個別空調、トイレ: 男女別 洋式
その他:駐車場設備あり
- 備 考
-
■2005年7月、耐震補強工事済 ■EV⇒乗用:2基(10人乗)、1基(9人乗)、1基(6人乗) ■倉庫あり(別途契約)
注) 上記の価格には、別途、消費税及び地方消費税が課されます。
消費税率が変更された場合には、以後、変更後の税率が課されることとなります。
物件情報更新日:2026-01-15
お気軽にお問合せください
- HOME
- >
- エリアから探す
- >
- 中央区
- >
- 築地・新富・八丁堀・入船
- >
- 八丁堀サンケイビル (旧:TOKYU REIT八丁堀ビル)
- >
- 八丁堀サンケイビル (旧:TOKYU REIT八丁堀ビル) 4階
