新耐震基準適合
柳屋ビルディング
8階(東京都中央区日本橋)
新耐震基準適合
柳屋ビルディング
8階(東京都中央区日本橋)
- 賃料(坪単価):
- 相談(@―)
- 共益費(坪単価)
- :
- 相談 (@―)
- 預託金(保証金/敷金)
- :
- ―(相談)
- 面積
- :
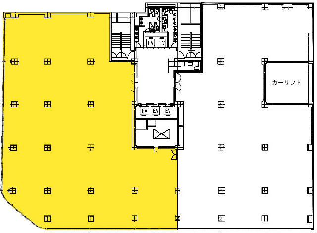
- 282.82坪 (934.94m²)
- 所在地
- :
- 東京都中央区日本橋2-1-10
- 最寄駅
- :
-
日本橋駅まで徒歩1分
日本橋駅まで徒歩1分
日本橋駅まで徒歩1分
三越前駅まで徒歩4分
三越前駅まで徒歩4分
物件情報
所在地・アクセス
- 物件名
- 柳屋ビルディング 8階
- 所在地
- 東京都中央区日本橋2-1-10
- 最寄駅
-
東京メトロ銀座線 日本橋駅まで徒歩1分
東京メトロ東西線 日本橋駅まで徒歩1分
都営浅草線 日本橋駅まで徒歩1分
東京メトロ半蔵門線 三越前駅まで徒歩4分
東京メトロ銀座線 三越前駅まで徒歩4分
賃貸条件
- 賃料(坪単価)
- 相談(@―)
- 礼 金
- 無
- 共益費(坪単価)
- 相談(@―)
- 面 積
- 282.82坪 (934.94m²)
- 賃料+共益費(坪単価)
- 相談 (@―)
- 償 却
- 無
- 預託金(保証金/敷金)
- ―(相談)
- 入居可能日
- 2026年6月予定
- 更新料(再契約料)
- 無
- 契約期間
- 5年(定借)
物件概要
- 特 徴
- 構 造
- 鉄骨鉄筋コンクリート造/新耐震基準適合
- 物件タイプ
- 事務所
- 規 模
- 地下3階付9階建
- 取引態様
- 一般媒介
- 竣 工
- 1964年
- 設 備
-
E V :5基、天井高:―㎜、床仕様:OAフロア(H=100mm)、空調:セントラル・個別併用、トイレ:共用 男女別 洋式
その他:機械警備、有人警備、駐車場設備あり
- 備 考
-
■貸会議室あり ※図面着色部分が募集区画となりますが、契約面積と相違する可能性があることを予めご了承ください。
注) 上記の価格には、別途、消費税及び地方消費税が課されます。
消費税率が変更された場合には、以後、変更後の税率が課されることとなります。
物件情報更新日:2026-03-04
お気軽にお問合せください
現在募集中の区画
- 階数
- 面積
- 賃料
- 共益費
- 間取図
- HOME
- >
- エリアから探す
- >
- 中央区
- >
- 八重洲・京橋・日本橋
- >
- 柳屋ビルディング
- >
- 柳屋ビルディング 8階
