当社管理物件
新耐震
西新橋JKビル
5階(東京都港区西新橋)
当社管理物件
新耐震
西新橋JKビル
5階(東京都港区西新橋)
- 賃料(坪単価):
- 1,077,230円(@15,400円)
- 共益費(坪単価)
- :
- 251,820円 (@3,600円)
- 預託金(保証金/敷金)
- :
- 6,463,380円(6ヶ月)
- 面積
- :
- 69.95坪 (231.24m²)
- 所在地
- :
- 東京都港区西新橋3-15-12
- 最寄駅
- :
-
虎ノ門ヒルズ駅まで徒歩5分
神谷町駅まで徒歩6分
御成門駅まで徒歩6分
虎ノ門駅まで徒歩8分
新橋駅まで徒歩13分
スタッフコメント
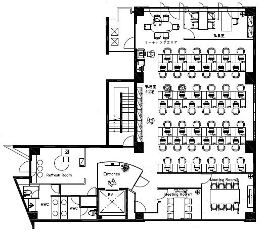
大規模な再開発が進み、新たなビジネス街への進化を遂げる虎ノ門エリアに位置する当ビルの周辺には、2020年に開業した新駅【虎ノ門ヒルズ駅】や虎ノ門ヒルズ・出世の神様として有名な愛宕神社といった虎ノ門を代表する名所が建ち並んでおります!2012年10月には、屋上にウッドデッキ仕様の入居テナント様専用の屋上テラスを新設。7階室内には、給湯を兼ねるリフレッシュスペースが設置されており、各階EVホールには、ガラスパーテーションの造作付で入居時にかかる内装工事費用の軽減が可能です!執務スペースは無柱のレイアウトしやすい形状で、OAフロア仕様となっております。執務室には約50名程度、収容可能です!※会議室2室(6名・8名)を設置した場合。1階はスケルトン仕様、店舗でご利用可能です。業種は個別でのご相談となります。ご内見も可能ですので、是非お気軽にお問い合わせください。
担当:渡部 南 支店:新橋店 更新日:2025年12月30日
物件情報
所在地・アクセス
- 物件名
- 西新橋JKビル 5階
- 所在地
- 東京都港区西新橋3-15-12
- 最寄駅
-
東京メトロ日比谷線 虎ノ門ヒルズ駅まで徒歩5分
東京メトロ日比谷線 神谷町駅まで徒歩6分
都営三田線 御成門駅まで徒歩6分
東京メトロ銀座線 虎ノ門駅まで徒歩8分
東京メトロ銀座線 新橋駅まで徒歩13分
賃貸条件
- 賃料(坪単価)
- 1,077,230円(@15,400円)
- 礼 金
- 無
- 共益費(坪単価)
- 251,820円(@3,600円)
- 面 積
- 69.95坪 (231.24m²)
- 賃料+共益費(坪単価)
- 1,329,050円 (@19,000円)
- 償 却
- 無
- 預託金(保証金/敷金)
- 6,463,380円(6ヶ月)
- 入居可能日
- 2026年5月上旬予定
- 更新料(再契約料)
- 無
- 契約期間
- 2年
物件概要
物件情報更新日:2025-12-29
お気軽にお問合せください
現在募集中の区画
- 階数
- 面積
- 賃料
- 共益費
- 間取図
