新耐震
RMS原宿ビル
4+5階(東京都渋谷区神宮前)
新耐震
RMS原宿ビル
4+5階(東京都渋谷区神宮前)
- 賃料(坪単価):
- 830,000円(@―)
- 共益費(坪単価)
- :
- 無 (@―)
- 預託金(保証金/敷金)
- :
- 2,490,000円(3ヶ月)
- 面積
- :
- 39.389坪 (130.21m²)
- 所在地
- :
- 東京都渋谷区神宮前2-18-21
- 最寄駅
- :
-
北参道駅まで徒歩9分
外苑前駅まで徒歩10分
明治神宮前駅まで徒歩10分
原宿駅まで徒歩12分
表参道駅まで徒歩14分
物件情報
所在地・アクセス
- 物件名
- RMS原宿ビル 4+5階
- 所在地
- 東京都渋谷区神宮前2-18-21
- 最寄駅
-
東京メトロ副都心線 北参道駅まで徒歩9分
東京メトロ銀座線 外苑前駅まで徒歩10分
東京メトロ千代田線 明治神宮前駅まで徒歩10分
JR山手線 原宿駅まで徒歩12分
東京メトロ半蔵門線 表参道駅まで徒歩14分
賃貸条件
- 賃料(坪単価)
- 830,000円(@―)
- 礼 金
- 無
- 共益費(坪単価)
- 無(@―)
- 面 積
- 39.389坪 (130.21m²)
- 賃料+共益費(坪単価)
- 830,000円 (@―)
- 償 却
- 賃料の1ヶ月分
- 預託金(保証金/敷金)
- 2,490,000円(3ヶ月)
- 入居可能日
- 即日
- 更新料(再契約料)
- 新賃料の1ヶ月分
- 契約期間
- 2年
物件概要
- 特 徴
-
- 構 造
- 鉄筋コンクリート造/新耐震
- 物件タイプ
- 店舗・事務所
- 規 模
- 地下1階付6階建
- 取引態様
- 一般媒介
- 竣 工
- 2008年7月
- 設 備
-
E V :1基、天井高:―㎜、床仕様:―、空調:―、トイレ:専用 洋式
その他:機械警備
- 備 考
-
■引渡し:現況有姿(美容サロン) ※設備は、残置物となります。 ■営業可能時間:9:00~22:00 ■軽飲食店舗相談可能 ■SOHO利用可能 ■違約金⇒1年未満解約の場合:賃料の1ヶ月分、2年未満の場合:賃料の0.5ヶ月分 ■初回館銘板設置料:30,000円 ■鍵交換費用を、別途ご負担いただきます。 ■貸主指定の火災保険にご加入いただきます。 ■貸主指定の保証会社と保証委託契約を締結していただきます。
注) 上記の価格には、別途、消費税及び地方消費税が課されます。
消費税率が変更された場合には、以後、変更後の税率が課されることとなります。
物件情報更新日:2026-03-23
お気軽にお問合せください
現在募集中の区画
- 階数
- 面積
- 賃料
- 共益費
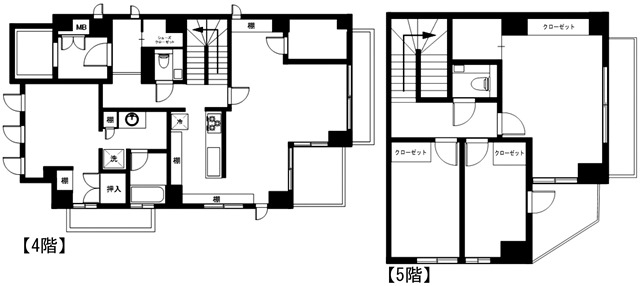
- 間取図
