居抜物件
新耐震
赤坂三基ビル
9階(東京都港区赤坂)
居抜物件
新耐震
赤坂三基ビル
9階(東京都港区赤坂)
- 賃料(坪単価):
- 478,500円(@15,000円)
- 共益費(坪単価)
- :
- 127,600円 (@4,000円)
- 預託金(保証金/敷金)
- :
- 2,871,000円(6ヶ月)
- 面積
- :
- 31.90坪 (105.46m²)
- 所在地
- :
- 東京都港区赤坂7-11-9
- 最寄駅
- :
-
赤坂駅まで徒歩5分
乃木坂駅まで徒歩6分
六本木駅まで徒歩10分
六本木駅まで徒歩10分
撮影更新日:2025年08月05日
スタッフコメント
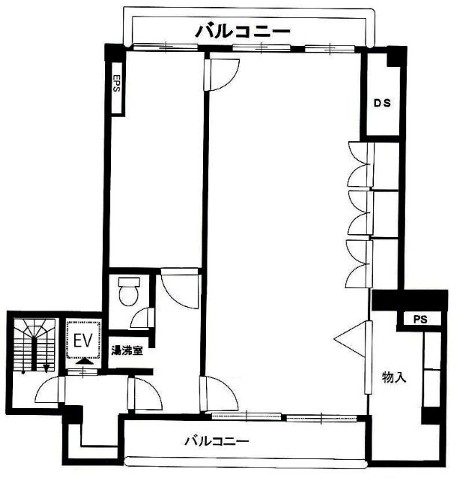
東京メトロ千代田線「赤坂駅」から徒歩5分、「乃木坂駅」から徒歩6分で、利便性の高い立地です。赤坂通りに面している為、従業員様の通勤やお取引先のご来社にも便利なロケーションです。当物件最大の特徴は、執務室の壁一面がホワイトボード仕様になっている点です。アイデア出しやチームミーティング、プロジェクト管理など、クリエイティブな業務に最適な空間です。さらに、収納棚も備え付けられており、購入する費用と手間を節約できます。エレベーター不停止が導入されており、セキュリティ面も安心。お客様で什器を入れて頂ければすぐにご利用頂ける為、分室やプロジェクト単位での使い方にもおススメです。是非お早めにご内覧くださいませ!
担当:太田 賢吾 支店:新橋店 更新日:2026年4月2日
物件情報
所在地・アクセス
- 物件名
- 赤坂三基ビル 9階
- 所在地
- 東京都港区赤坂7-11-9
- 最寄駅
-
東京メトロ千代田線 赤坂駅まで徒歩5分
東京メトロ千代田線 乃木坂駅まで徒歩6分
東京メトロ日比谷線 六本木駅まで徒歩10分
都営大江戸線 六本木駅まで徒歩10分
賃貸条件
- 賃料(坪単価)
- 478,500円(@15,000円)
- 礼 金
- 賃料の1ヶ月分
- 共益費(坪単価)
- 127,600円(@4,000円)
- 面 積
- 31.90坪 (105.46m²)
- 賃料+共益費(坪単価)
- 606,100円 (@19,000円)
- 償 却
- 無
- 預託金(保証金/敷金)
- 2,871,000円(6ヶ月)
- 入居可能日
- 即日
- 更新料(再契約料)
- 新賃料の1ヶ月分
- 契約期間
- 2年
物件概要
- 特 徴
- 構 造
- 鉄骨鉄筋コンクリート造/新耐震
- 物件タイプ
- 事務所
- 規 模
- 地下1階付9階建
- 取引態様
- 一般媒介
- 竣 工
- 1988年1月
- 設 備
-
E V :1基、天井高:2400㎜、床仕様:タイルカーペット、空調:個別空調、トイレ:専用 男女共用 洋式
その他:機械警備
- 備 考
-
■ゴミ処理:廃棄物収集運搬業者に収集・処理を依頼して頂きます。 ■貸室面積には、EVホール・トイレ・給湯室の面積が含まれます。 ■貸主指定の火災保険にご加入いただきます。 ■貸主指定の保証会社と保証委託契約を締結していただきます。
注) 上記の価格には、別途、消費税及び地方消費税が課されます。
消費税率が変更された場合には、以後、変更後の税率が課されることとなります。
物件情報更新日:2026-04-01
お気軽にお問合せください
