新耐震基準適合
京セラ原宿ビル
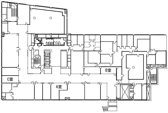
B1階B室(東京都渋谷区神宮前)
新耐震基準適合
京セラ原宿ビル
B1階B室(東京都渋谷区神宮前)
- 賃料(坪単価):
- 相談(@―)
- 共益費(坪単価)
- :
- 相談 (@―)
- 預託金(保証金/敷金)
- :
- 相談(―)
- 面積
- :
- 6.94坪 (22.93m²)
- 所在地
- :
- 東京都渋谷区神宮前6-27-8
- 最寄駅
- :
-
明治神宮前駅まで徒歩4分
明治神宮前駅まで徒歩4分
原宿駅まで徒歩7分
表参道駅まで徒歩9分
渋谷駅まで徒歩10分
物件情報
所在地・アクセス
- 物件名
- 京セラ原宿ビル B1階B室
- 所在地
- 東京都渋谷区神宮前6-27-8
- 最寄駅
-
東京メトロ千代田線 明治神宮前駅まで徒歩4分
東京メトロ副都心線 明治神宮前駅まで徒歩4分
JR山手線 原宿駅まで徒歩7分
東京メトロ千代田線 表参道駅まで徒歩9分
JR山手線 渋谷駅まで徒歩10分
賃貸条件
- 賃料(坪単価)
- 相談(@―)
- 礼 金
- 相談
- 共益費(坪単価)
- 相談(@―)
- 面 積
- 6.94坪 (22.93m²)
- 賃料+共益費(坪単価)
- 相談 (@―)
- 償 却
- 相談
- 預託金(保証金/敷金)
- 相談(―)
- 入居可能日
- 相談
- 更新料(再契約料)
- 相談
- 契約期間
- 相談
物件概要
- 特 徴
- 構 造
- 鉄骨鉄筋コンクリート造/新耐震基準適合
- 物件タイプ
- 事務所
- 規 模
- 地下2階付6階建
- 取引態様
- 一般媒介
- 竣 工
- 1974年7月
- 設 備
-
E V :5基、天井高:2450㎜、床仕様:OAフロア(H=80mm)、空調:セントラル・個別併用、トイレ:共用 男女別
その他:機械警備、駐車場設備あり
- 備 考
- お問い合わせください。
物件情報更新日:2026-03-02
お気軽にお問合せください
現在募集中の区画
- 階数
- 面積
- 賃料
- 共益費
- 間取図
