当社管理物件
キャンペーン実施中
新耐震
MAビル三田Ⅱ (旧:三ッ輪三田ビル)
3階(東京都港区芝)
当社管理物件
キャンペーン実施中
新耐震
MAビル三田Ⅱ (旧:三ッ輪三田ビル)
3階(東京都港区芝)
- 賃料(坪単価):
- 1,077,840円(@18,000円)
- 共益費(坪単価)
- :
- 179,640円 (@3,000円)
- 預託金(保証金/敷金)
- :
- 6,467,040円(6ヶ月)
- 面積
- :
- 59.88坪 (197.96m²)
- 所在地
- :
- 東京都港区芝5-1-13
- 最寄駅
- :
-
三田駅まで徒歩7分
赤羽橋駅まで徒歩8分
三田駅まで徒歩8分
田町駅まで徒歩9分
田町駅まで徒歩9分
スタッフコメント
1992年竣工の重厚感のあるオフィスビル!桜田通り沿いに所在し視認性が高く、またJR山手線【田町駅】徒歩6分、都営三田線・浅草線【三田駅】徒歩6分と複数路線利用可能な物件です。 物件目の前はバス停もございます。 機械警備・EV不停止機能付きでセキュリティー面も安心です。 また、ランチ環境も充実しております。是非ご内見ください!
担当:林原 汐里 支店:浜松町店 更新日:2026年2月17日
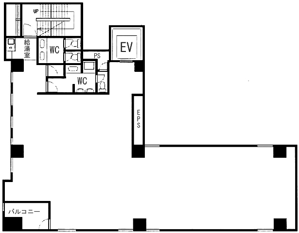
物件情報
所在地・アクセス
- 物件名
- MAビル三田Ⅱ (旧:三ッ輪三田ビル) 3階
- 所在地
- 東京都港区芝5-1-13
- 最寄駅
-
都営三田線 三田駅まで徒歩7分
都営大江戸線 赤羽橋駅まで徒歩8分
都営浅草線 三田駅まで徒歩8分
JR山手線 田町駅まで徒歩9分
JR京浜東北線 田町駅まで徒歩9分
賃貸条件
- 賃料(坪単価)
- 1,077,840円(@18,000円)
- 礼 金
- 無
- 共益費(坪単価)
- 179,640円(@3,000円)
- 面 積
- 59.88坪 (197.96m²)
- 賃料+共益費(坪単価)
- 1,257,480円 (@21,000円)
- 償 却
- 無
- 預託金(保証金/敷金)
- 6,467,040円(6ヶ月)
- 入居可能日
- 2026年4月1日予定
- 更新料(再契約料)
- 新賃料の1ヶ月分
- 契約期間
- 3年(定借)
物件概要
- 特 徴
- 構 造
- 鉄骨・鉄骨鉄筋コンクリート造/新耐震
- 物件タイプ
- 事務所
- 規 模
- 地下1階付9階建
- 取引態様
- 一般媒介
- 竣 工
- 1992年5月
- 設 備
-
E V :1基、天井高:2400㎜、床仕様:OAフロア、空調:個別空調、トイレ:専用 男女別 洋式
その他:機械警備
- 備 考
-
■機械警備:ALSOK ■貸主指定の保険代理店・補償内容による火災総合保険にご加入いただきます。 ■貸主指定の保証会社と保証委託契約を締結していただきます。※締結いただかない場合、敷金は賃料の10ヶ月分となります。
注) 上記の価格には、別途、消費税及び地方消費税が課されます。
消費税率が変更された場合には、以後、変更後の税率が課されることとなります。
物件情報更新日:2026-02-16
お気軽にお問合せください
キャンペーン実施中。詳細はお問合せ下さい。
この物件のお問合せ- HOME
- >
- エリアから探す
- >
- 港区
- >
- 田町・三田
- >
- MAビル三田Ⅱ (旧:三ッ輪三田ビル)
- >
- MAビル三田Ⅱ (旧:三ッ輪三田ビル) 3階
