新耐震
VORT浜松町Ⅱ
6階(東京都港区浜松町)
新耐震
VORT浜松町Ⅱ
6階(東京都港区浜松町)
- 賃料(坪単価):
- 相談(@―)
- 共益費(坪単価)
- :
- 相談 (@―)
- 預託金(保証金/敷金)
- :
- 相談(―)
- 面積
- :
- 61.85坪 (204.48m²)
- 所在地
- :
- 東京都港区浜松町1-10-11
- 最寄駅
- :
-
大門駅まで徒歩3分
大門駅まで徒歩3分
御成門駅まで徒歩6分
浜松町駅まで徒歩6分
浜松町駅まで徒歩6分
物件情報
所在地・アクセス
- 物件名
- VORT浜松町Ⅱ 6階
- 所在地
- 東京都港区浜松町1-10-11
- 最寄駅
-
都営浅草線 大門駅まで徒歩3分
都営大江戸線 大門駅まで徒歩3分
都営三田線 御成門駅まで徒歩6分
JR山手線 浜松町駅まで徒歩6分
JR京浜東北線 浜松町駅まで徒歩6分
賃貸条件
- 賃料(坪単価)
- 相談(@―)
- 礼 金
- 相談
- 共益費(坪単価)
- 相談(@―)
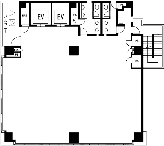
- 面 積
- 61.85坪 (204.48m²)
- 賃料+共益費(坪単価)
- 相談 (@―)
- 償 却
- 相談
- 預託金(保証金/敷金)
- 相談(―)
- 入居可能日
- 相談
- 更新料(再契約料)
- 相談
- 契約期間
- 相談
物件概要
- 特 徴
- 構 造
- 鉄骨鉄筋コンクリート造/新耐震
- 物件タイプ
- 事務所
- 規 模
- 10階建
- 取引態様
- 一般媒介
- 竣 工
- 1992年5月
- 設 備
-
E V :2基、天井高:―㎜、床仕様:OAフロア、空調:個別空調、トイレ:専用 男女別 洋式
その他:機械警備、EV不停止機能付
- 備 考
- お問い合わせください。
物件情報更新日:2026-01-14
お気軽にお問合せください
- HOME
- >
- エリアから探す
- >
- 港区
- >
- 浜松町・芝大門・芝公園
- >
- VORT浜松町Ⅱ
- >
- VORT浜松町Ⅱ 6階
