当社管理物件
セットアップオフィス
新耐震
募集終了
TBCビル
2階(東京都渋谷区東)
当社管理物件
セットアップオフィス
新耐震
募集終了
TBCビル
2階(東京都渋谷区東)
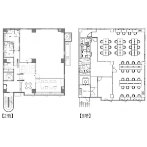
- 面積
- :
- 62.06坪 (205.18m²)
- 所在地
- :
- 東京都渋谷区東2-27-10
- 最寄駅
- :
-
恵比寿駅まで徒歩7分
恵比寿駅まで徒歩8分
代官山駅まで徒歩9分
渋谷駅まで徒歩12分
渋谷駅まで徒歩12分
物件情報
所在地・アクセス
- 物件名
- TBCビル 2階
- 所在地
- 東京都渋谷区東2-27-10
- 最寄駅
-
東京メトロ日比谷線 恵比寿駅まで徒歩7分
JR山手線 恵比寿駅まで徒歩8分
東急東横線 代官山駅まで徒歩9分
JR山手線 渋谷駅まで徒歩12分
東急東横線 渋谷駅まで徒歩12分
物件概要
- 特 徴
- 構 造
- 鉄骨鉄筋コンクリート造/新耐震
- 物件タイプ
- 事務所
- 規 模
- 7階建
- 取引態様
- 一般媒介
- 竣 工
- 1984年9月
- 設 備
-
E V :1基(9人乗)、天井高:2950㎜、床仕様:OAフロア(H=100mm)、空調:個別空調、トイレ:専用 男女別 洋式
その他:機械警備、エントランスセキュリティ
物件情報更新日:2025-11-25
- HOME
- >
- エリアから探す
- >
- 渋谷区
- >
- 恵比寿・代官山・広尾
- >
- TBCビル
- >
- TBCビル 2階
