当社管理物件
セットアップオフィス
新耐震
市ヶ谷クロスプレイス
3階(東京都新宿区市谷田町)
当社管理物件
セットアップオフィス
新耐震
市ヶ谷クロスプレイス
3階(東京都新宿区市谷田町)
- 賃料(坪単価):
- 1,168,860円(@23,000円)
- 共益費(坪単価)
- :
- 賃料に含む (@―)
- 預託金(保証金/敷金)
- :
- 7,013,160円(6ヶ月)
- 面積
- :
- 50.82坪 (168.00m²)
- 所在地
- :
- 東京都新宿区市谷田町2-7-15
- 最寄駅
- :
-
市ヶ谷駅まで徒歩2分
市ヶ谷駅まで徒歩5分
市ヶ谷駅まで徒歩7分
市ヶ谷駅まで徒歩10分
牛込神楽坂駅まで徒歩11分
スタッフコメント
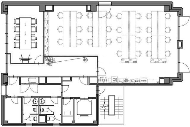
東京メトロ南北線【市ヶ谷駅】徒歩2分、複数路線利用可能な駅が近く、お堀と緑に囲まれた周辺環境良好な立地に所在します。大通りに面したレンガ造りのひときわ目を引く外観です。風格あるエントランスは、ご来訪者様の信頼感を高めます。1階はおしゃれなカフェが盛業中です。機械警備により、セキュリティ面も安心です。9階の貸室内はコンパクトな面積ですが、共用の男女別トイレが備わっております。3階は2026年6月に貸室内の内装造作付きセットアップ工事(什器なし)が完了予定となっております。起業はもちろん、拠点展開、分室等にも適しています。ぜひ一度ご内覧ください。
担当:大熊 勇輝 支店:麹町店 更新日:2026年4月3日
物件情報
所在地・アクセス
- 物件名
- 市ヶ谷クロスプレイス 3階
- 所在地
- 東京都新宿区市谷田町2-7-15
- 最寄駅
-
東京メトロ南北線 市ヶ谷駅まで徒歩2分
東京メトロ有楽町線 市ヶ谷駅まで徒歩5分
JR中央線 市ヶ谷駅まで徒歩7分
都営新宿線 市ヶ谷駅まで徒歩10分
都営大江戸線 牛込神楽坂駅まで徒歩11分
賃貸条件
- 賃料(坪単価)
- 1,168,860円(@23,000円)
- 礼 金
- 無
- 共益費(坪単価)
- 賃料に含む(@―)
- 面 積
- 50.82坪 (168.00m²)
- 賃料+共益費(坪単価)
- 1,168,860円 (@23,000円)
- 償 却
- 無
- 預託金(保証金/敷金)
- 7,013,160円(6ヶ月)
- 入居可能日
- 2026年7月1日予定
- 更新料(再契約料)
- 新賃料の1ヶ月分
- 契約期間
- 2年(定借)
物件概要
- 特 徴
- 構 造
- 鉄骨・鉄筋コンクリート造/新耐震
- 物件タイプ
- 事務所
- 規 模
- 地下2階付9階建
- 取引態様
- 一般媒介
- 竣 工
- 1993年6月
- 設 備
-
E V :2基(1基は地下専用)、天井高:―㎜、床仕様:OAフロア、空調:個別空調、トイレ:専用 男女別 洋式
その他:機械警備、駐車場設備あり
- 備 考
-
※リニューアル工事中のため、契約面積や設備等変更となる可能性がございますので、予めご了承ください。 ■2026年6月、内装造作付きセットアップ工事完了予定 ■貸室面積には、EVホールの面積は含まれません。 ■エントランス開放時間:全日6:00~20:00 ※左記時間帯以外は鍵解錠により24時間入退館可能 ■SFビルサポート株式会社と保証委託契約を締結していただきます。 ※与信状況によって預託金額が変動する場合がございます。
注) 上記の価格には、別途、消費税及び地方消費税が課されます。
消費税率が変更された場合には、以後、変更後の税率が課されることとなります。
物件情報更新日:2026-04-02
お気軽にお問合せください
現在募集中の区画
- 階数
- 面積
- 賃料
- 共益費
- 間取図
- HOME
- >
- エリアから探す
- >
- 新宿区
- >
- 市ヶ谷
- >
- 市ヶ谷クロスプレイス
- >
- 市ヶ谷クロスプレイス 3階
