新耐震
東急不動産恵比寿ビル
1階(東京都渋谷区恵比寿)
新耐震
東急不動産恵比寿ビル
1階(東京都渋谷区恵比寿)
- 賃料(坪単価):
- 相談(@―)
- 共益費(坪単価)
- :
- 無 (@―)
- 預託金(保証金/敷金)
- :
- ―(12ヶ月)
- 面積
- :
- 186.48坪 (616.49m²)
- 所在地
- :
- 東京都渋谷区恵比寿1-18-18
- 最寄駅
- :
-
恵比寿駅まで徒歩6分
恵比寿駅まで徒歩6分
恵比寿駅まで徒歩6分
広尾駅まで徒歩14分
代官山駅まで徒歩15分
物件情報
所在地・アクセス
- 物件名
- 東急不動産恵比寿ビル 1階
- 所在地
- 東京都渋谷区恵比寿1-18-18
- 最寄駅
-
JR山手線 恵比寿駅まで徒歩6分
東京メトロ日比谷線 恵比寿駅まで徒歩6分
JR埼京線 恵比寿駅まで徒歩6分
東京メトロ日比谷線 広尾駅まで徒歩14分
東急東横線 代官山駅まで徒歩15分
賃貸条件
- 賃料(坪単価)
- 相談(@―)
- 礼 金
- 無
- 共益費(坪単価)
- 無(@―)
- 面 積
- 186.48坪 (616.49m²)
- 賃料+共益費(坪単価)
- 相談 (@―)
- 償 却
- 無
- 預託金(保証金/敷金)
- ―(12ヶ月)
- 入居可能日
- 2026年4月1日予定
- 更新料(再契約料)
- 無
- 契約期間
- 3年(定借)
物件概要
- 特 徴
- 構 造
- 鉄骨鉄筋コンクリート造/新耐震
- 物件タイプ
- 事務所
- 規 模
- 地下1階付9階建
- 取引態様
- 一般媒介
- 竣 工
- 1993年3月
- 設 備
-
E V :3基(15人乗)、天井高:―㎜、床仕様:―、空調:個別空調、トイレ:共用 男女別 洋式
その他:機械警備、駐車場設備あり
- 備 考
-
■貸室面積には、EVホール・廊下・トイレ等の面積は含まれません。 ■エントランス開放時間:月~土8:00~20:00、日祝Close ※左記時間帯以外は通用口よりセキュリティカード操作にて入退館可能
注) 上記の価格には、別途、消費税及び地方消費税が課されます。
消費税率が変更された場合には、以後、変更後の税率が課されることとなります。
物件情報更新日:2026-01-15
お気軽にお問合せください
現在募集中の区画
- 階数
- 面積
- 賃料
- 共益費
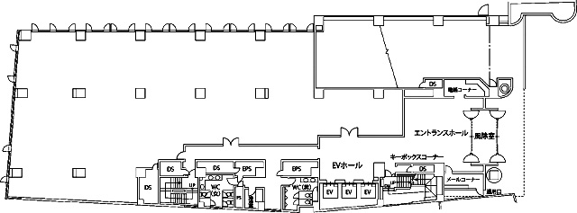
- 間取図
- HOME
- >
- エリアから探す
- >
- 渋谷区
- >
- 恵比寿・代官山・広尾
- >
- 東急不動産恵比寿ビル
- >
- 東急不動産恵比寿ビル 1階
