28山京ビル
504号室(東京都豊島区東池袋)
28山京ビル
504号室(東京都豊島区東池袋)
- 賃料(坪単価):
- 257,140円(@13,000円)
- 共益費(坪単価)
- :
- 69,230円 (@3,500円)
- 預託金(保証金/敷金)
- :
- 1,542,840円(6ヶ月)
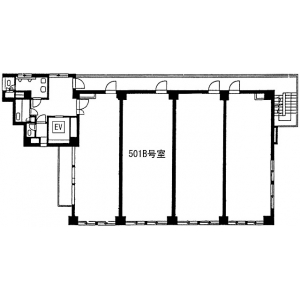
- 面積
- :
- 19.78坪 (65.45m²)
- 所在地
- :
- 東京都豊島区東池袋1-42-14
- 最寄駅
- :
-
池袋駅まで徒歩5分
池袋駅まで徒歩5分
池袋駅まで徒歩5分
池袋駅まで徒歩5分
池袋駅まで徒歩5分
物件情報
所在地・アクセス
- 物件名
- 28山京ビル 504号室
- 所在地
- 東京都豊島区東池袋1-42-14
- 最寄駅
-
JR山手線 池袋駅まで徒歩5分
東京メトロ丸ノ内線 池袋駅まで徒歩5分
東京メトロ有楽町線 池袋駅まで徒歩5分
西武池袋線 池袋駅まで徒歩5分
東武東上線 池袋駅まで徒歩5分
賃貸条件
- 賃料(坪単価)
- 257,140円(@13,000円)
- 礼 金
- 無
- 共益費(坪単価)
- 69,230円(@3,500円)
- 面 積
- 19.78坪 (65.45m²)
- 賃料+共益費(坪単価)
- 326,370円 (@16,500円)
- 償 却
- 賃料の2ヶ月分
- 預託金(保証金/敷金)
- 1,542,840円(6ヶ月)
- 入居可能日
- 即日
- 更新料(再契約料)
- 新賃料の1ヶ月分
- 契約期間
- 2年(定借)
物件概要
- 特 徴
- 構 造
- 鉄骨鉄筋コンクリート造
- 物件タイプ
- 事務所
- 規 模
- 7階建
- 取引態様
- 一般媒介
- 竣 工
- 1982年11月
- 設 備
-
E V :1基、天井高:2480㎜、床仕様:―、空調:個別空調、トイレ:共用 男女別
その他:機械警備
- 備 考
-
■引渡し:現況有姿 ■貸室面積には、共用部の面積が含まれます。 ■解約予告:3ヶ月前
注) 上記の価格には、別途、消費税及び地方消費税が課されます。
消費税率が変更された場合には、以後、変更後の税率が課されることとなります。
物件情報更新日:2025-12-22
お気軽にお問合せください
現在募集中の区画
- 階数
- 面積
- 賃料
- 共益費
- 間取図
