当社管理物件
セットアップオフィス
新耐震
THE CROSS GOTANDA
2階(東京都品川区西五反田)
当社管理物件
セットアップオフィス
新耐震
THE CROSS GOTANDA
2階(東京都品川区西五反田)
- 賃料(坪単価):
- 1,474,980円(@26,000円)
- 共益費(坪単価)
- :
- 賃料に含む (@―)
- 預託金(保証金/敷金)
- :
- 8,849,880円(6ヶ月)
- 面積
- :
- 56.73坪 (187.55m²)
- 所在地
- :
- 東京都品川区西五反田2-24-4
- 最寄駅
- :
-
五反田駅まで徒歩5分
五反田駅まで徒歩6分
五反田駅まで徒歩7分
大崎広小路駅まで徒歩8分
大崎駅まで徒歩14分
スタッフコメント
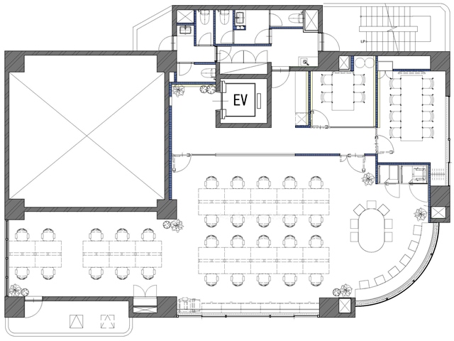
JR山手線【五反田駅】まで徒歩6分と、都内各所や新幹線(品川駅)・空港(羽田空港)へのアクセスも良く、目黒川沿いの為、春には桜も楽しめます。 ビルのエントランスは清潔感のある白基調の明るい空間。貸室は約30~35名の執務空間に加え、可動間仕切りを設置することで様々な利用ができる会議室、社内コミュニケーションにも役立つインナーラウンジ等のセットアップオフィスにリニューアル!成長を加速させるセットアップオフィス、是非ご検討ください!!
担当:一山 僚汰 支店:五反田店 更新日:2026年2月7日
物件情報
所在地・アクセス
- 物件名
- THE CROSS GOTANDA 2階
- 所在地
- 東京都品川区西五反田2-24-4
- 最寄駅
-
都営浅草線 五反田駅まで徒歩5分
JR山手線 五反田駅まで徒歩6分
東急池上線 五反田駅まで徒歩7分
東急池上線 大崎広小路駅まで徒歩8分
JR山手線 大崎駅まで徒歩14分
賃貸条件
- 賃料(坪単価)
- 1,474,980円(@26,000円)
- 礼 金
- 無
- 共益費(坪単価)
- 賃料に含む(@―)
- 面 積
- 56.73坪 (187.55m²)
- 賃料+共益費(坪単価)
- 1,474,980円 (@26,000円)
- 償 却
- 無
- 預託金(保証金/敷金)
- 8,849,880円(6ヶ月)
- 入居可能日
- 即日
- 更新料(再契約料)
- 無
- 契約期間
- 2年
物件概要
- 特 徴
- 構 造
- 鉄骨鉄筋コンクリート造/新耐震
- 物件タイプ
- 事務所
- 規 模
- 10階建
- 取引態様
- 一般媒介
- 竣 工
- 1993年8月
- 設 備
-
E V :1基(13人乗)、天井高:―㎜、床仕様:OAフロア、空調:個別空調、トイレ:専用 男女別 洋式
その他:機械警備、駐車場設備あり
- 備 考
-
■2025年9月、内装造作付きセットアップ工事完了(テレカンブース2室、4名用・8名用会議室、ラウンジ付)※会議室は什器設置済 ■貸主指定の清掃会社と貸室内の清掃契約を締結していただきます。 ■エントランス開放時間:平日7:00~20:00、土日祝Close ※左記時間帯以外はセキュリティカード利用により24時間入退館可能 ■SFビルサポート株式会社と保証委託契約を締結していただきます。 ※与信状況によって預託金額が変動する場合がございます。
注) 上記の価格には、別途、消費税及び地方消費税が課されます。
消費税率が変更された場合には、以後、変更後の税率が課されることとなります。
物件情報更新日:2026-02-06
お気軽にお問合せください
- HOME
- >
- エリアから探す
- >
- 品川区
- >
- 品川・大崎・五反田
- >
- THE CROSS GOTANDA
- >
- THE CROSS GOTANDA 2階
