新耐震
鈴中ビル大森ANNEX
7階(東京都品川区南大井)
新耐震
鈴中ビル大森ANNEX
7階(東京都品川区南大井)
- 賃料(坪単価):
- 相談(@―)
- 共益費(坪単価)
- :
- 賃料に含む (@―)
- 預託金(保証金/敷金)
- :
- ―(12ヶ月)
- 面積
- :
- 76.21坪 (251.94m²)
- 所在地
- :
- 東京都品川区南大井6-16-16
- 最寄駅
- :
-
大森駅まで徒歩3分
大森海岸駅まで徒歩8分
物件情報
所在地・アクセス
- 物件名
- 鈴中ビル大森ANNEX 7階
- 所在地
- 東京都品川区南大井6-16-16
- 最寄駅
-
JR京浜東北線 大森駅まで徒歩3分
京急本線 大森海岸駅まで徒歩8分
賃貸条件
- 賃料(坪単価)
- 相談(@―)
- 礼 金
- 無
- 共益費(坪単価)
- 賃料に含む(@―)
- 面 積
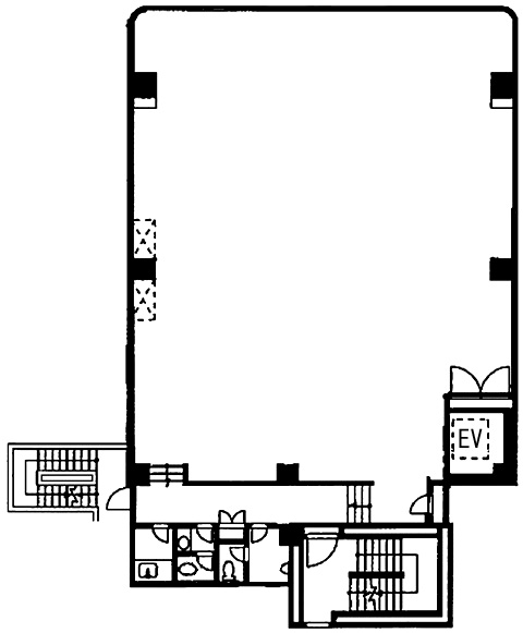
- 76.21坪 (251.94m²)
- 賃料+共益費(坪単価)
- 相談 (@―)
- 償 却
- 無
- 預託金(保証金/敷金)
- ―(12ヶ月)
- 入居可能日
- 2026年1月1日予定
- 更新料(再契約料)
- 無
- 契約期間
- 2年
物件概要
- 特 徴
- 構 造
- 鉄骨鉄筋コンクリート造/新耐震
- 物件タイプ
- 事務所
- 規 模
- 地下1階付8階建
- 取引態様
- 一般媒介
- 竣 工
- 1993年5月
- 設 備
-
E V :1基(9人乗)、天井高:2550㎜、床仕様:OAフロア(H=50mm)、空調:個別空調、トイレ:専用 男女別 洋式
その他:機械警備、EV不停止機能付、駐車場設備あり
- 備 考
-
■2021年、共用部リニューアル実施済 ■貸室面積には、トイレ・給湯室等の面積が含まれます。 ■床荷重:300㎏/㎡ ■電気容量:約100VA/㎡ ■エントランス開放時間:全日7:00~21:00 ※左記時間帯以外は通用口より24時間入退館可能
注) 上記の価格には、別途、消費税及び地方消費税が課されます。
消費税率が変更された場合には、以後、変更後の税率が課されることとなります。
物件情報更新日:2025-11-10
お気軽にお問合せください
現在募集中の区画
- 階数
- 面積
- 賃料
- 共益費
- 間取図
- HOME
- >
- エリアから探す
- >
- 品川区
- >
- 品川区その他
- >
- 鈴中ビル大森ANNEX
- >
- 鈴中ビル大森ANNEX 7階
