新耐震
神宮前董友ビルⅠ (旧:原宿董友ビル)
8階(東京都渋谷区神宮前)
新耐震
神宮前董友ビルⅠ (旧:原宿董友ビル)
8階(東京都渋谷区神宮前)
- 賃料(坪単価):
- 相談(@―)
- 共益費(坪単価)
- :
- 相談 (@―)
- 預託金(保証金/敷金)
- :
- 相談(―)
- 面積
- :
- 54.44坪 (179.97m²)
- 所在地
- :
- 東京都渋谷区神宮前6-10-9
- 最寄駅
- :
-
明治神宮前駅まで徒歩2分
明治神宮前駅まで徒歩2分
原宿駅まで徒歩7分
表参道駅まで徒歩9分
表参道駅まで徒歩9分
物件情報
所在地・アクセス
- 物件名
- 神宮前董友ビルⅠ (旧:原宿董友ビル) 8階
- 所在地
- 東京都渋谷区神宮前6-10-9
- 最寄駅
-
東京メトロ千代田線 明治神宮前駅まで徒歩2分
東京メトロ副都心線 明治神宮前駅まで徒歩2分
JR山手線 原宿駅まで徒歩7分
東京メトロ銀座線 表参道駅まで徒歩9分
東京メトロ半蔵門線 表参道駅まで徒歩9分
賃貸条件
- 賃料(坪単価)
- 相談(@―)
- 礼 金
- 相談
- 共益費(坪単価)
- 相談(@―)
- 面 積
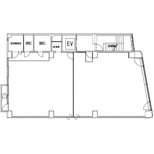
- 54.44坪 (179.97m²)
- 賃料+共益費(坪単価)
- 相談 (@―)
- 償 却
- 相談
- 預託金(保証金/敷金)
- 相談(―)
- 入居可能日
- 相談
- 更新料(再契約料)
- 相談
- 契約期間
- 相談
物件概要
- 特 徴
- 構 造
- 鉄骨鉄筋コンクリート造/新耐震
- 物件タイプ
- 事務所
- 規 模
- 地下1階付8階建
- 取引態様
- 一般媒介
- 竣 工
- 1986年9月
- 設 備
-
E V :1基(9人乗)、天井高:3,255mm(梁下2,465mm)㎜、床仕様:OAフロア(H=29mm)、空調:個別空調、トイレ:専用 男女別
その他:機械警備、有人警備
- 備 考
- お問い合わせください。
物件情報更新日:2026-04-23
お気軽にお問合せください
現在募集中の区画
- 階数
- 面積
- 賃料
- 共益費
- 間取図
- HOME
- >
- エリアから探す
- >
- 渋谷区
- >
- 千駄ヶ谷・神宮前
- >
- 神宮前董友ビルⅠ (旧:原宿董友ビル)
- >
- 神宮前董友ビルⅠ (旧:原宿董友ビル) 8階
