当社管理物件
新耐震
HI池袋ビル
2階(東京都豊島区南池袋)
当社管理物件
新耐震
HI池袋ビル
2階(東京都豊島区南池袋)
- 賃料(坪単価):
- 相談(@―)
- 共益費(坪単価)
- :
- 賃料に含む (@―)
- 預託金(保証金/敷金)
- :
- ―(8ヶ月)
- 面積
- :
- 77.54坪 (256.33m²)
- 所在地
- :
- 東京都豊島区南池袋3-9-7
- 最寄駅
- :
-
池袋駅まで徒歩5分
池袋駅まで徒歩7分
池袋駅まで徒歩7分
池袋駅まで徒歩7分
池袋駅まで徒歩7分
スタッフコメント
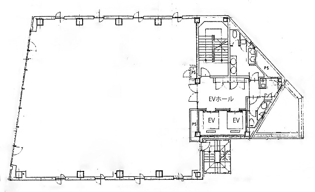
HI池袋ビルは、東京都豊島区南池袋に位置し、西武池袋線・JR山手線・東京メトロ丸ノ内線など複数路線が利用できる高い交通利便性を備えたオフィスビルです。池袋駅から徒歩圏内で、ビジネスの拠点として優れたアクセス性を発揮します。募集区画は整形オフィスで、レイアウトしやすく、幅広い業種に対応可能。OAフロアを採用しているため配線計画も柔軟で、室内には男女別トイレを完備し、来客時にも安心の設備水準です。天井高は2,500mmと開放感があり、快適な執務環境を実現します。また、機械警備を導入しており、セキュリティ面も安心。周辺には商業施設や飲食店が豊富で、働く人にとって利便性の高いロケーションとなっております!
担当:飯森 貴史 支店:池袋店 更新日:2026年4月7日
物件情報
所在地・アクセス
- 物件名
- HI池袋ビル 2階
- 所在地
- 東京都豊島区南池袋3-9-7
- 最寄駅
-
西武池袋線 池袋駅まで徒歩5分
JR山手線 池袋駅まで徒歩7分
東京メトロ丸ノ内線 池袋駅まで徒歩7分
東京メトロ有楽町線 池袋駅まで徒歩7分
東京メトロ副都心線 池袋駅まで徒歩7分
賃貸条件
- 賃料(坪単価)
- 相談(@―)
- 礼 金
- 無
- 共益費(坪単価)
- 賃料に含む(@―)
- 面 積
- 77.54坪 (256.33m²)
- 賃料+共益費(坪単価)
- 相談 (@―)
- 償 却
- 無
- 預託金(保証金/敷金)
- ―(8ヶ月)
- 入居可能日
- 相談
- 更新料(再契約料)
- 無
- 契約期間
- 2年
物件概要
物件情報更新日:2026-04-06
お気軽にお問合せください
