新耐震
日本薬学会長井記念館
7階(東京都渋谷区渋谷)
新耐震
日本薬学会長井記念館
7階(東京都渋谷区渋谷)
- 賃料(坪単価):
- 相談(@―)
- 共益費(坪単価)
- :
- 相談 (@―)
- 預託金(保証金/敷金)
- :
- 相談(―)
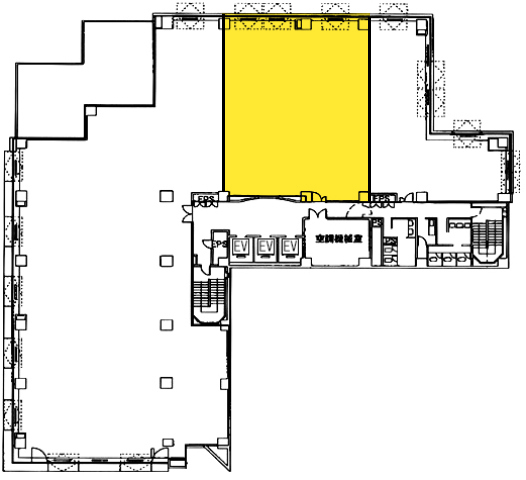
- 面積
- :
- 62.78坪 (207.56m²)
- 所在地
- :
- 東京都渋谷区渋谷2-12-15
- 最寄駅
- :
-
渋谷駅まで徒歩7分
渋谷駅まで徒歩7分
渋谷駅まで徒歩7分
渋谷駅まで徒歩7分
渋谷駅まで徒歩7分
物件情報
所在地・アクセス
- 物件名
- 日本薬学会長井記念館 7階
- 所在地
- 東京都渋谷区渋谷2-12-15
- 最寄駅
-
JR山手線 渋谷駅まで徒歩7分
東京メトロ銀座線 渋谷駅まで徒歩7分
東京メトロ半蔵門線 渋谷駅まで徒歩7分
東京メトロ副都心線 渋谷駅まで徒歩7分
JR埼京線 渋谷駅まで徒歩7分
賃貸条件
- 賃料(坪単価)
- 相談(@―)
- 礼 金
- 相談
- 共益費(坪単価)
- 相談(@―)
- 面 積
- 62.78坪 (207.56m²)
- 賃料+共益費(坪単価)
- 相談 (@―)
- 償 却
- 相談
- 預託金(保証金/敷金)
- 相談(―)
- 入居可能日
- 相談
- 更新料(再契約料)
- 相談
- 契約期間
- 相談
物件概要
- 特 徴
- 構 造
- 鉄骨鉄筋コンクリート造/新耐震
- 物件タイプ
- 事務所
- 規 模
- 地下2階付8階建
- 取引態様
- 一般媒介
- 竣 工
- 1991年6月
- 設 備
-
E V :3基(15人乗)、天井高:―㎜、床仕様:タイルカーペット、空調:セントラル、トイレ:共用 男女別 洋式
その他:機械警備、駐車場設備あり
- 備 考
- お問い合わせください。
物件情報更新日:2026-04-17
お気軽にお問合せください
現在募集中の区画
- 階数
- 面積
- 賃料
- 共益費
- 間取図
- HOME
- >
- エリアから探す
- >
- 渋谷区
- >
- 渋谷
- >
- 日本薬学会長井記念館
- >
- 日本薬学会長井記念館 7階
