新耐震
K-SPIREビル
4階(神奈川県横浜市中区不老町)
新耐震
K-SPIREビル
4階(神奈川県横浜市中区不老町)
- 賃料(坪単価):
- 相談(@―)
- 共益費(坪単価)
- :
- 相談 (@―)
- 預託金(保証金/敷金)
- :
- 相談(―)
- 面積
- :
- 35.17坪 (116.29m²)
- 所在地
- :
- 神奈川県横浜市中区不老町1-5-11
- 最寄駅
- :
-
関内駅まで徒歩3分
関内駅まで徒歩3分
伊勢佐木長者町駅まで徒歩5分
日本大通り駅まで徒歩10分
石川町駅まで徒歩10分
物件情報
所在地・アクセス
- 物件名
- K-SPIREビル 4階
- 所在地
- 神奈川県横浜市中区不老町1-5-11
- 最寄駅
-
JR根岸線 関内駅まで徒歩3分
横浜市営ブルーライン 関内駅まで徒歩3分
横浜市営ブルーライン 伊勢佐木長者町駅まで徒歩5分
横浜高速鉄道みなとみらい線 日本大通り駅まで徒歩10分
JR根岸線 石川町駅まで徒歩10分
賃貸条件
- 賃料(坪単価)
- 相談(@―)
- 礼 金
- 相談
- 共益費(坪単価)
- 相談(@―)
- 面 積
- 35.17坪 (116.29m²)
- 賃料+共益費(坪単価)
- 相談 (@―)
- 償 却
- 相談
- 預託金(保証金/敷金)
- 相談(―)
- 入居可能日
- 相談
- 更新料(再契約料)
- 相談
- 契約期間
- 相談
物件概要
- 特 徴
- 構 造
- 鉄骨造/新耐震
- 物件タイプ
- 事務所
- 規 模
- 7階建
- 取引態様
- 一般媒介
- 竣 工
- 1991年12月
- 設 備
-
E V :1基、天井高:―㎜、床仕様:―、空調:個別空調、トイレ:専用 男女別 洋式
- 備 考
- お問い合わせください。
物件情報更新日:2026-04-21
お気軽にお問合せください
現在募集中の区画
- 階数
- 面積
- 賃料
- 共益費
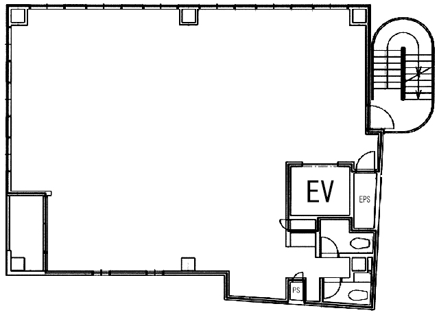
- 間取図
