
中央区日本橋住所に会議室付きセットアップオフィスが募集となります!エントランスは高級感を感じさせる明るく存在感がある開放的な空間へと生まれ変わります。執務室はデザイン性の高いスタイリッシュな室内空間を創出しており会議室、受付台を設置済の為、初期コストも軽減可能な物件となります。(2018年11月上旬完成)物件からのアクセスは東京メトロ東西線・銀座線・都営地下鉄浅草線【日本橋駅】徒歩3分、東京の玄関口である【東京駅】へも徒歩圏内と利便性にも優れております。開発エリアとして今後の発展はもちろんのこと東京を縦横無尽に駆け巡る日本橋住所をビジネスの拠点にしてみませんか?屋上には入居者様専用のテラスを設置しておりますのでリフレッシュスペースとしてご利用ください。ぜひお気軽にお問い合わせくださいませ!
※写真内の什器・家具につきまして付属はございません。予めご了承ください。また、掲載内容とお引渡し状態が異なる場合は現況を優先させていただきます。
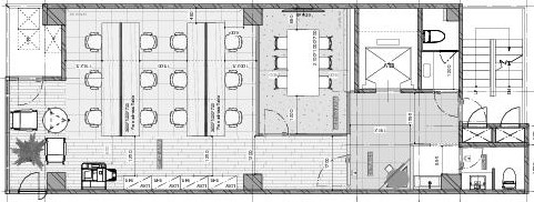
OVERVIEW
- 物件No.
- 1-1117
- 募集期間
- ご成約まで
- 所在地
- 中央区日本橋
- 最寄駅
-
東京メトロ銀座線
日本橋駅 徒歩3分
東京メトロ東西線
日本橋駅 徒歩3分
東京メトロ日比谷線
茅場町駅 徒歩6分
- 面積
- 23.84坪 / 78.8㎡
- 会議室
- 6名掛け会議室×1
- 推奨人数
- 10~12人
- 構造
- 鉄骨造
- 規模
- 9階建
- 施工
- 1993年
- エレベーター
- 1基(9人乗)
- 天井の高さ
- ―
- 空調
- 個別空調
- トイレ
- 専用 男女別 洋式
- 床仕様
- OAフロア
- 賃料
- 667,520円
- 共益費
- 賃料に含む
- 預託金
- 賃料の5か月分
- 契約期間
- 2年
- 引き渡し時期
- 2026年10月上旬予定
- その他
- 更新料:無/ 償却:無/ 礼金:無/ 契約形態:普通賃貸借契約/ その他:契約の際には、SFビルサポート株式会社と保証委託契約を締結していただきます。※与信状況によって預託金額が変動する場合がございます。/
現在オンライン内覧が可能です
オンライン内覧について詳しくはこちら
CHECK IT!
この物件についてもっと詳しく
そのまんまオフィス会員
3つのメリット
-

物件の
詳細情報の公開 -

新着物件を
お知らせ -

未公開物件を
ご紹介


















