
JR中央線・総武線/東京メトロ丸ノ内線/東京メトロ南北線と複数路線が乗り入れている【四ツ谷駅】から徒歩10分圏内、また【四谷三丁目駅】や【曙橋駅】も利用可能で3駅5路線と交通アクセスに優れ、通勤や営業にも便利な立地に当ビルはございます。三栄通りに面した角地のビルで視認性にも長けており、目の前には緑溢れる三栄公園があり、来客の方が道に迷う心配もございません。2020年2月中旬に室内リニューアル工事完了、エントランスは2020年11月にリニューアル工事完了しております!エントランスは重厚感・品格を感じられるデザインとなっており、ひと際目を引くビル外観へと生まれ変わります。5+6階は当ビル唯一のメゾネット区画です。リニューアルデザインは壁の材質やタイル模様のディティールにこだわり、スタイリッシュかつ柔らかさも感じられる仕様です。男女別トイレは5階に全て集約し、無駄のないレイアウトを実現しました。6階にはフリーで使えるオープンスペースを作り、応接や社内ミーティングスペース等にご利用いただけます。専用のルーフバルコニーもあり、三栄公園の緑を見ながら社内打ち合わせやランチ休憩、誰にも邪魔されず考えたい時等…色んなシーンで利用できる居心地の良い空間を演出します。都会の喧騒を忘れさせてくれる様な落ち着いた環境で仕事に没頭してみませんか。是非一度内覧ください!
OVERVIEW
- 物件No.
- 1-1528
- 募集期間
- ご成約まで
- 所在地
- 新宿区四谷三栄町
- 最寄駅
-
東京メトロ南北線
四ツ谷駅 徒歩7分
東京メトロ丸ノ内線
四ツ谷駅 徒歩7分
JR中央線快速
四ツ谷駅 徒歩9分
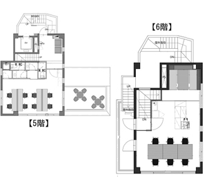
- 面積
- 27.32坪 / 90.32㎡
- 会議室
- 4名掛けボックスソファースペース×1
- 推奨人数
- 10〜15人
- 構造
- 鉄筋コンクリート造
- 規模
- 地下1階付6階建
- 施工
- 1989年
- エレベーター
- 1基(6人乗)
- 天井の高さ
- 5階:2,877mm、6階:2,555mm
- 空調
- 個別空調
- トイレ
- 専用 男女別 洋式
- 床使用
- OAフロア(H=80mm)
- 賃料
- ご相談
- 共益費
- 賃料に含む
- 預託金
- 賃料の6ヶ月分
- 契約期間
- 2年
- 引き渡し時期
- 2024年5月上旬予定
- その他
- 更新料:無/ 償却:無/ 礼金:無/ 契約形態:普通賃貸借契約/ 貸室面積:5階:50.22㎡(15.19坪)、6階:40.10㎡(12.13坪)/ その他:契約の際には、SFビルサポート株式会社と保証委託契約を締結していただきます。※与信状況によって預託金額が変動する場合がございます。/
360°CAMERA
現在オンライン内覧が可能です
オンライン内覧について詳しくはこちら
CHECK IT!
この物件についてもっと詳しく
そのまんまオフィス会員
3つのメリット
-

物件の
詳細情報の公開 -

新着物件を
お知らせ -

未公開物件を
ご紹介


















