
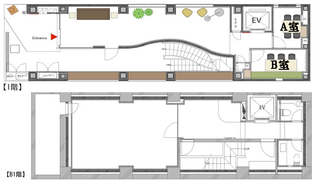
銀座の上品さと、機能性を高めたクリエイティブオフィス。1階エントランスは、高級感とお洒落感を感じさせる白を基調とした曲線のあるエントランスに改修済み(2019年9月改修工事完了)。地下1階貸室内は、天井に、自然光を再現した照明「Coelux(コエルクス)」を導入し、貸室内に空と太陽光を表現し、地階を感じさせない空間を実現いたしました。執務室・トイレ・給湯部分は、解放感のある快適仕様に改修済み(2019年9月改修工事完了)。当ビルは交通アクセスが良く、芸能と芸術の街『銀座』を、存分に堪能していただけます。内覧等についてのご要望は、お気軽にお問合せください!
※掲載内容とお引渡し状態が異なる場合は現況を優先させていただきます。
OVERVIEW
- 物件No.
- 1-1541
- 募集期間
- ご成約まで
- 所在地
- 中央区銀座
- 最寄駅
-
東京メトロ日比谷線
東銀座駅 徒歩4分
東京メトロ銀座線
銀座駅 徒歩7分
JR山手線
有楽町駅 徒歩11分
- 面積
- 20.74坪 / 68.59㎡
- 会議室
- 4名掛け会議室×1
- 推奨人数
- 5~8人
- 構造
- 鉄筋コンクリート造・鉄骨造
- 規模
- 地下1階付8階建
- 施工
- 1994年
- エレベーター
- 1基
- 天井の高さ
- 2,720mm
- 空調
- 個別空調
- トイレ
- 専用 男女別 洋式
- 床仕様
- OAフロア(H=70mm)
- 賃料
- 440,000円
- 共益費
- 賃料に含む
- 預託金
- 賃料の4ヶ月分
- 契約期間
- ―
- 引き渡し時期
- 2026年6月下旬予定
- その他
- 再契約料:無/ 償却:無/ 礼金:無/ 契約形態:定期建物賃貸借契約/ 契約期間:年相談/ その他:契約の際には、SFビルサポート株式会社と保証委託契約を締結していただきます。※与信状況によって預託金額が変動する場合がございます。/
現在オンライン内覧が可能です
オンライン内覧について詳しくはこちら
CHECK IT!
この物件についてもっと詳しく
そのまんまオフィス会員
3つのメリット
-

物件の
詳細情報の公開 -

新着物件を
お知らせ -

未公開物件を
ご紹介


















