
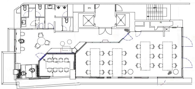
エントランスは2022年3月にリニューアルされており、木目調で開放感のある空間がお客様をお出迎えします。また、エントランス内には共用の打合せスペースもあり、ちょっとした打合せの際はエントランスで接客することも可能です。貸室はシンプルかつ、効率的なデザインになっており、三面採光で明るいスペースとなっています。また、8名用会議室やラウンジスペースにも什器を設置済みのため、内装造作費を大幅に削減してのご入居が可能となります。(2025年3月、貸室内リニューアル工事完了)是非お問い合わせ・ご内覧ください!
※掲載内容とお引渡し状態が異なる場合は現況を優先させていただきます。
photographer:星野 佑
OVERVIEW
- 物件No.
- 1-1571
- 募集期間
- ご成約まで
- 所在地
- 品川区西五反田
- 最寄駅
-
JR山手線
五反田駅 徒歩11分
JR山手線
目黒駅 徒歩12分
東急目黒線
不動前駅 徒歩3分
- 面積
- 51.07坪 / 168.85㎡
- 会議室
- 8名掛け会議室×1
- 推奨人数
- 30〜35人
- 構造
- 鉄骨鉄筋コンクリート造
- 規模
- 地下2階付10階建
- 施工
- 1989年
- エレベーター
- 2基
- 天井の高さ
- ―
- 空調
- 個別空調
- トイレ
- 専用 男女別 洋式
- 床使用
- OAフロア
- 賃料
- 1,225,680円
- 共益費
- 賃料に含む
- 預託金
- 無
- 契約期間
- 2年
- 引き渡し時期
- 即日
- その他
- 更新料:無/ 償却:無/ 礼金:賃料の1ヶ月分/ 契約形態:普通賃貸借契約/ その他:ごみ処理代月額5,000円をご負担いただきます。/契約の際には、貸主指定の保証会社と保証委託契約を締結していただきます。※与信状況によって預託をお願いする場合がございます。/
現在オンライン内覧が可能です
オンライン内覧について詳しくはこちら
CHECK IT!
この物件についてもっと詳しく
そのまんまオフィス会員
3つのメリット
-

物件の
詳細情報の公開 -

新着物件を
お知らせ -

未公開物件を
ご紹介


















