
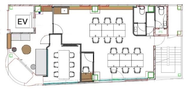
ポップなデザインが目を惹くリノベーションオフィスが募集となりました!内装のデザインは、シリコンバレーのオフィスにインスピレーションを受け、アメリカ西海岸をイメージしたものになっています。執務室内には、12名分のデスク・チェアをあらかじめ設置。Wi-Fiも引き込んでいるので、オフィスでのお仕事を始めるまでの準備期間をぐっと短縮することができます。会議室には、6名用のデスク・チェアに加えモニターも設置済み。デザイン面だけでなく機能的にもご満足いただける作りになっています。会議室に隣接する自然光のたっぷり入るラウンジスペースは、従業員皆で集まったり、少し気分を変えてお仕事をしたりと様々な活用方法があります。テレカンブースも1つご準備しているので、オンラインミーティングが多い会社様にもおすすめ。ぜひ一度現地をご覧くださいませ!なお、当ビルは、敷金無(※1)、仲介手数料不要、退去時の原状回復費用無(※2)と、コスト面の優位性も光っています。是非、一度お問い合わせくださいませ。(※3)
※1:与信状況によって預託をお願いする場合がございます。
※2:現状変更した場合や破損等を除きます。また、契約時にクリーニング費用を別途お支払いいただきます。
※3:お引渡し状態は現状を優先とさせていただきます。
【リニューアル情報】
2021年、エントランス・共用部大規模リニューアル工事完了
2021年7月、貸室内リニューアル工事完了
2025年4月、貸室内リニューアル工事完了予定(レイアウト変更)
photographer:星野 佑
OVERVIEW
- 物件No.
- 2-2059
- 募集期間
- ご成約まで
- 所在地
- 中央区東日本橋
- 最寄駅
-
JR総武線快速
馬喰町駅 徒歩2分
東京都交通局浅草線
東日本橋駅 徒歩5分
東京都交通局新宿線
馬喰横山駅 徒歩6分
- 面積
- 22.53坪 / 74.48㎡
- 会議室
- 6名掛け会議室×1
- 推奨人数
- 10~12人
- 構造
- 鉄骨造
- 規模
- 10階建
- 施工
- 1987年
- エレベーター
- 1基
- 天井の高さ
- ―
- 空調
- 個別空調
- トイレ
- 専用 男女別 洋式
- 床仕様
- 一部コンクリート
- 賃料
- 540,720円
- 共益費
- 賃料に含む
- 預託金
- 無
- 契約期間
- 2年
- 引き渡し時期
- 2026年2月上旬予定
- その他
- 更新料:無/ 償却:無/ 礼金:無/ 契約形態:普通賃貸借契約/ その他:契約開始より12ヶ月間解約不可(12ヶ月間以内解約の場合、違約金が発生いたします)/原状回復義務なし(現状変更した場合や破損等を除く)/クリーニング費用ご負担いただきます。(契約時)/貸主指定の清掃会社と貸室内の清掃契約を締結していただきます。/専有部清掃費(週3回):月額41,000円/ゴミ処理費:月額4,000円/Wi-Fi通信費は賃料に含まれます。/契約の際には、貸主指定の保証会社と保証委託契約を締結していただきます。※与信状況によって預託をお願いする場合がございます。/
現在オンライン内覧が可能です
オンライン内覧について詳しくはこちら
CHECK IT!
この物件についてもっと詳しく
そのまんまオフィス会員
3つのメリット
-

物件の
詳細情報の公開 -

新着物件を
お知らせ -

未公開物件を
ご紹介

















