
中央区築地に会議室付きのセットアップオフィスが登場!高級感を感じさせるアプローチ、落ち着きと品格のあるエントランスとなっております。また、貸室内はガラスパーテーションの機能的な会議室付き、大きな窓面の開放感溢れる魅力的なオフィス空間となっております。東京メトロ日比谷線【築地駅】有楽町線【新富町駅】ともに徒歩2分に位置しており、【東京駅】へも徒歩圏内と利便性にも優れています。一度ご覧いただいたら気に入っていただけるかと思います♪是非一度ご覧くださいませ!
※掲載内容とお引渡し状態が異なる場合は現況を優先させていただきます。
OVERVIEW
- 物件No.
- 1-1182
- 募集期間
- ご成約まで
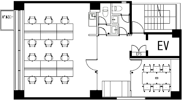
- 所在地
- 中央区築地
- 最寄駅
-
東京メトロ日比谷線
築地駅 徒歩2分
東京メトロ有楽町線
新富町駅 徒歩2分
東京メトロ日比谷線
東銀座駅 徒歩9分
- 面積
- 22.34坪 / 73.88㎡
- 会議室
- 6名掛け会議室×1
- 推奨人数
- 10~12人
- 構造
- 鉄骨鉄筋コンクリート造
- 規模
- 地下1階付9階建
- 施工
- 1991年
- エレベーター
- 1基(6人乗)
- 天井の高さ
- 2,200mm
- 空調
- 個別空調
- トイレ
- 室内専用 男女別 洋式
- 床仕様
- OAフロア(H=50mm)
- 賃料
- ご相談
- 共益費
- ご相談
- 預託金
- 無
- 契約期間
- 2年
- 引き渡し時期
- 2026年4月2日予定
- その他
- 更新料:無/ 償却:無/ 礼金:無/ 契約形態:普通賃貸借契約/ その他:契約の際には、貸主指定の保証会社をご利用いただけます。※締結いただかない場合、敷金は賃料の12ヶ月分となります。/
現在オンライン内覧が可能です
オンライン内覧について詳しくはこちら
CHECK IT!
この物件についてもっと詳しく
そのまんまオフィス会員
3つのメリット
-

物件の
詳細情報の公開 -

新着物件を
お知らせ -

未公開物件を
ご紹介









