
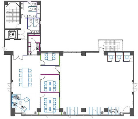
日本独自のカルチャーが集約され、今もなお進化し続ける街「秋葉原」エリアに所在するフルリノベーションオフィスが募集となりました!当ビルは、東京メトロ日比谷線・JR山手線【秋葉原駅】、都営新宿線【岩本町駅】など徒歩圏内に複数路線が利用可能な立地にあり、ガラスカーテンウォールの明るい外観、重厚感のあるエントランスがお客様をお出迎えいたします。貸室は内装造作を施したセットアップオフィスとなっております。広々としたラウンジや利用に応じたサイズを選べる会議室を設置。更に、WEBミーティングの際にも周囲を気にせず利用可能な個別集中ブースを3室設置致しました。デザイン性に加え、新しい働き方にも対応可能な機能性を兼ね備えたオフィスを是非ご体験ください。
photographer:星野 佑
OVERVIEW
- 物件No.
- 2-2192
- 募集期間
- ご成約まで
- 所在地
- 千代田区神田佐久間町
- 最寄駅
-
JR山手線
秋葉原駅 徒歩5分
東京メトロ日比谷線
秋葉原駅 徒歩5分
東京都交通局新宿線
岩本町駅 徒歩8分
- 面積
- 96.34坪 / 318.49㎡
- 会議室
- 8名掛け会議室×1
6名掛け会議室×1
4名掛け会議室×1
テレカンブース×3
- 推奨人数
- 45~50人
- 構造
- 鉄筋コンクリート造
- 規模
- 4階建
- 施工
- 1985年
- エレベーター
- 1基(9人乗)
- 天井の高さ
- ―
- 空調
- 個別空調
- トイレ
- 専用 男女別 洋式
- 床使用
- OAフロア
- 賃料
- 2,408,500円
- 共益費
- 賃料に含む
- 預託金
- ご相談
- 契約期間
- 2年
- 引き渡し時期
- 2025年6月27日予定
- その他
- 更新料:無/ 償却:無/ 礼金:無/ 契約形態:普通賃貸借契約/ その他:契約の際には、貸主指定の保証会社と保証委託契約を締結していただきます。/
360°CAMERA
現在オンライン内覧が可能です
オンライン内覧について詳しくはこちら
CHECK IT!
この物件についてもっと詳しく
そのまんまオフィス会員
3つのメリット
-

物件の
詳細情報の公開 -

新着物件を
お知らせ -

未公開物件を
ご紹介


















