
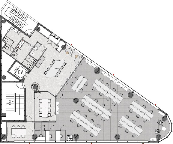
東京メトロ半蔵門線【半蔵門駅】徒歩1分(5番出口の目の前)、千代田区一番町の地に新たなセットアップオフィスが誕生します。気品ある美しいエントランスは、入居者様のモチベーションとお客様の信頼感を高め、オートロック(室内から開錠可能)と機械警備により、セキュリティ面も安心です。EVを降りると、最大3,450mmの高さのラウンジが入居者様、来訪者様をお迎えします。執務室は窓面も大きく、採光性に優れた明るく開放的な空間となり、入居者様に心地よい高揚感をもたらします。会議室は2部屋。どちらも執務室から直接入室できる扉があるため、来訪者様との動線が重ならずスマートにご案内ができるとともに、社内会議での利用にも便利です。また、機密性に優れ、集中力を要す作業やテレカンファレンスに利用いただける個室ブースを設置。入居者様も来訪者様も、積極的に訪れ、集まりたくなる利便性・快適性を追求したオフィスになります。集中力や生産性が高まるワークプレイスを求める企業様にも、大切なお客様を積極的にお迎えしたい業種の方にも適した、多様な働き方に寄り添える、新しいオフィスの在り方をご提案します。是非お問い合わせください。
※レイアウトに変更がある場合がございます。予めご了承ください。
OVERVIEW
- 物件No.
- 2-2263
- 募集期間
- ご成約まで
- 所在地
- 千代田区一番町
- 最寄駅
-
東京メトロ半蔵門線
半蔵門駅 徒歩1分
東京メトロ有楽町線
麹町駅 徒歩9分
東京都交通局新宿線
市ヶ谷駅 徒歩10分
- 面積
- 79.78坪 / 263.75㎡
- 会議室
- 6名掛け会議室×1
8名掛け会議室×1
- 推奨人数
- 40~42人
- 構造
- 鉄骨・鉄筋コンクリート造
- 規模
- 地下1階付7階建
- 施工
- 2001年
- エレベーター
- 1基
- 天井の高さ
- 執務室3,450mm(梁下2,400mm)
- 空調
- 個別空調
- トイレ
- 専用 男女別 洋式
- 床使用
- OAフロア(H=100mm)
- 賃料
- 1,914,720円
- 共益費
- 賃料に含む
- 預託金
- 賃料の7ヶ月分
- 契約期間
- 2年
- 引き渡し時期
- 即日
- その他
- 更新料:無/ 償却:無/ 礼金:無/ 契約形態:普通賃貸借契約/ その他:契約の際には、SFビルサポート株式会社と保証委託契約を締結していただきます。※与信状況によって預託金額が変動する場合がございます。/貸主指定の清掃会社と貸室内の清掃契約を締結していただきます。/
360°CAMERA
現在オンライン内覧が可能です
オンライン内覧について詳しくはこちら
CHECK IT!
この物件についてもっと詳しく
そのまんまオフィス会員
3つのメリット
-

物件の
詳細情報の公開 -

新着物件を
お知らせ -

未公開物件を
ご紹介


















