
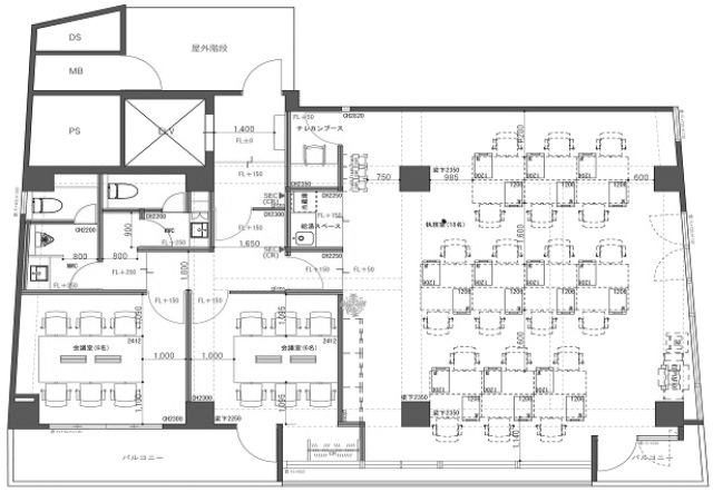
千代田区麹町。由緒正しい、格式高い当エリアにセットアップ物件が誕生しました。麹町を代表する通りである、プリンス通りと紀尾井坂が交差する角地に位置する当物件は、東側・南側に隣接する建物が無い為、窓から日差しが差し込み、明るい空間が広がります。白を基調としたスタイリッシュな執務室内には、個室集中ブースが1部屋設けられ、WEB会議や電話対応等ができるプライベートスペースとしてご利用いただけます。また6名用会議室が2部屋あり、什器が設置してある状態でお引渡しとなりますので、初期費用を抑えることが可能です。どちらの会議室にも窓面があり、闊達な意見交換やアイディアの生まれる空間となるでしょう。周辺はオフィスビルが立ち並びながらも、飲食店や銀行、コンビニ等が点在し、働きやすいエリアとなっております。是非一度ご内覧ください。
※掲載内容とお引渡し状態が異なる場合は現況を優先させていただきます。
【リニューアル情報】
2016年1月、EVリニューアル工事完了
2016年5月、個別空調更新完了
2022年4月、エントランス・貸室内リニューアル工事完了
photographer:星野佑
OVERVIEW
- 物件No.
- 2-2416
- 募集期間
- ご成約まで
- 所在地
- 千代田区麹町
- 最寄駅
-
東京メトロ有楽町線
麹町駅 徒歩1分
東京メトロ半蔵門線
半蔵門駅 徒歩5分
東京メトロ南北線
永田町駅 徒歩6分
- 面積
- 39.54坪 / 130.71㎡
- 会議室
- 6名掛け会議室×2
- 推奨人数
- 15~20人
- 構造
- 鉄骨鉄筋コンクリート造
- 規模
- 地下2階付8階建
- 施工
- 1987年
- エレベーター
- 1基
- 天井の高さ
- ―
- 空調
- 個別空調
- トイレ
- 専用 男女別 洋式
- 床仕様
- OAフロア
- 賃料
- 988,500円
- 共益費
- 賃料に含む
- 預託金
- 賃料の6ヶ月分
- 契約期間
- 2年
- 引き渡し時期
- 2026年5月9日予定
- その他
- 更新料:新賃料の1ヶ月分/ 償却:無/ 礼金:無/ 契約形態:普通賃貸借契約/ その他:貸主指定の保証会社と保証委託契約を締結していただきます。/
360°CAMERA
現在オンライン内覧が可能です
オンライン内覧について詳しくはこちら
CHECK IT!
この物件についてもっと詳しく
そのまんまオフィス会員
3つのメリット
-

物件の
詳細情報の公開 -

新着物件を
お知らせ -

未公開物件を
ご紹介
おすすめ物件
-
CAN RENT
NEW
【No.2-3734 神田TYビル /敷金無し・原状回復不要!Wi-Fi設備導入予定】神田エリアに什器付きフルセットアップオフィス誕生!
千代田区神田岩本町
18.3坪(60.5㎡)
会員限定
-
CAN RENT
NEW
【No.2-3722 神田TYビル /敷金無し・原状回復不要!Wi-Fi設備導入予定】神田・秋葉原エリア、什器付きコンパクトセットアップオフィス!
千代田区神田岩本町
19.21坪(63.52㎡)
会員限定
-
CLOSE
【仲介手数料不要/原状回復不要】千代田区・神田エリアの1棟リノベーションオフィス!フル什器設置のセットアップオフィス
千代田区神田岩本町
24.99坪(82.63㎡)


















