
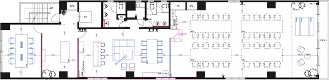
五反田エリアに間仕切りを予め設置したデザイナーズオフィスが登場!!五反田バレーや多様な飲食店、駅ビルの開業等、近年注目されている五反田ですが、昨今は渋谷や恵比寿へのアクセス面からオフィスニーズも高まり、人気のエリアに成長。こちらのビルは、共用部・エントランスのリニューアル(2017年)を実施。先進的なエントランスは、黒いモールが来館者様をスムーズに室内へ導いてくれることでしょう。また、貸室内には受付や会議室等に利用できるよう予め間仕切りを設置しており、内装コストの大幅な削減に寄与すると同時にお客様の仕様に合わせ様々な利用方法が可能。さらに今回は、執務室内以外の家具がセットされてのお引渡しとなります!仕事に集中でき、創造性豊かにメリハリのある仕事ができる空間です!是非一度、現物をあなたのその目でお確かめくださいませ!
※掲載内容とお引渡し状態が異なる場合は現況を優先させていただきます。
OVERVIEW
- 物件No.
- 2-2460
- 募集期間
- ご成約まで
- 所在地
- 品川区西五反田
- 最寄駅
-
JR山手線
五反田駅 徒歩8分
東急目黒線
不動前駅 徒歩7分
東急池上線
大崎広小路駅 徒歩7分
- 面積
- 65.23坪 / 215.64㎡
- 会議室
- 6名掛け会議室×1
- 推奨人数
- 35~39人
- 構造
- 鉄骨鉄筋コンクリート造
- 規模
- 9階建
- 施工
- 1988年
- エレベーター
- 1基(13人乗)
- 天井の高さ
- ―
- 空調
- 個別空調
- トイレ
- 専用 男女別 洋式
- 床仕様
- ―
- 賃料
- 1,565,520円
- 共益費
- 賃料に含む
- 預託金
- 賃料の6ヶ月分
- 契約期間
- 5年
- 引き渡し時期
- 相談
- その他
- 再契約料:無/ 償却:無/ 礼金:無/ 契約形態:普通賃貸借契約/ その他:契約の際には、貸主指定の保証会社と保証委託契約を締結していただきます。/
現在オンライン内覧が可能です
オンライン内覧について詳しくはこちら
CHECK IT!
この物件についてもっと詳しく
そのまんまオフィス会員
3つのメリット
-

物件の
詳細情報の公開 -

新着物件を
お知らせ -

未公開物件を
ご紹介


















