
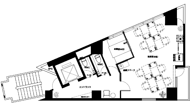
千代田区飯田橋エリアにコンパクトセットアップオフィスが誕生しました。東京メトロ・都営新宿線【飯田橋駅】徒歩1分、JR中央線・総武線各駅停車【飯田橋駅】徒歩3分の立地に所在しております。エントランス・専有部の大規模リニューアル工事を実施しており、2022年8月にリニューアル完成いたしました。貸室内には、受付スペース・4名用会議室を設置済みのため、入居に際してご負担となる内装工事や入居までの期間を大幅に圧縮することができます。また、入居後に執務室内に什器をいれていただくとすぐに業務をスタートさせることが可能です。また、当物件の特徴でもある足元まで広がる大きな窓からは採光が十分に取れ、明るく開放的な室内空間となっております(4~8階はリニューアル時、神田川側に窓サッシを新設済み)。コンパクトな面積ながらもデザイン性に富んでおり、男女別トイレ等の設備も充実したセットアップオフィスですので、スタートアップ企業のお客様に特におすすめの物件です。是非一度ご内見ください!
※掲載内容とお引渡し状態が異なる場合は現況を優先させていただきます。
photographer:星野 佑
OVERVIEW
- 物件No.
- 2-2469
- 募集期間
- ご成約まで
- 所在地
- 千代田区飯田橋
- 最寄駅
-
JR中央線・総武線各駅停車
飯田橋駅 徒歩3分
東京メトロ有楽町線
飯田橋駅 徒歩1分
東京メトロ東西線
飯田橋駅 徒歩1分
- 面積
- 15.82坪 / 52.31㎡
- 会議室
- 4名掛け会議室×1
- 推奨人数
- 5~8人
- 構造
- 鉄骨造
- 規模
- 9階建
- 施工
- 1999年
- エレベーター
- 1基(9人乗)
- 天井の高さ
- ―
- 空調
- 個別空調
- トイレ
- 専用 男女別 洋式
- 床仕様
- タイルカーペット
- 賃料
- 442,960円
- 共益費
- 賃料に含む
- 預託金
- 賃料の4ヶ月分
- 契約期間
- 2年
- 引き渡し時期
- 2026年7月29日予定
- その他
- 更新料:無/ 償却:無/ 礼金:無/ 契約形態:普通賃貸借契約/ その他:SFビルサポート株式会社と保証委託契約を締結していただきます。※与信状況によって預託金額が変動する場合がございます。/貸主指定の清掃会社と貸室内の清掃契約を締結していただきます。/
360°CAMERA
現在オンライン内覧が可能です
オンライン内覧について詳しくはこちら
CHECK IT!
この物件についてもっと詳しく
そのまんまオフィス会員
3つのメリット
-

物件の
詳細情報の公開 -

新着物件を
お知らせ -

未公開物件を
ご紹介


















