
まるでドラマのワンシーンに出てくるようなオフィス。社員が喜ぶ笑顔、お客様が驚く顔が想像できる、社内コミュニケーションを円滑にできるようなラグジュアリーオフィス。デザインだけではなく質感、機能性も兼ね揃え、しっかりと働く姿も想像させてくれるリアリティもそこにはあります。設置されているオフィス家具はデザイナーが選定した、ブランド品が採用されており、デザイン性と高級感が同時にビジュアルに飛び込んでくる高いセンスには、オフィスに入った瞬間圧倒されます。(オフィス家具は、受付、会議室、リフレッシュルームに設置しています。)エレベーターホールやトイレ、給湯もフルリニューアルが施されており、細部に渡っての隙のない造り込みには造り手の粋や想いを感じます。「こんなオフィスで働きたい」五感がフルに刺激され、誰をも魅了するラグジュアリーオフィス。是非一度ご内見ください!
※掲載内容とお引渡し状態が異なる場合は現況を優先させていただきます。
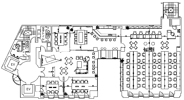
OVERVIEW
- 物件No.
- 2-2527
- 募集期間
- ご成約まで
- 所在地
- 千代田区神田紺屋町
- 最寄駅
-
JR山手線
神田駅 徒歩5分
東京メトロ銀座線
神田駅 徒歩5分
東京都交通局新宿線
岩本町駅 徒歩5分
- 面積
- 116.73坪 / 385.88㎡
- 会議室
- 8名掛け会議室×1
6名掛け会議室×2
- 推奨人数
- 48~55人
- 構造
- 鉄骨鉄筋コンクリート造
- 規模
- 地下1階付10階建
- 施工
- 1993年
- エレベーター
- 2基(13人乗)
- 天井の高さ
- ―
- 空調
- 個別空調
- トイレ
- 専用 男女別 洋式
- 床仕様
- OAフロア
- 賃料
- ご相談
- 共益費
- 賃料に含む
- 預託金
- ご相談
- 契約期間
- 3年
- 引き渡し時期
- 2026年9月上旬予定
- その他
- 更新料:無/ 償却:無/ 礼金:無/ 契約形態:普通賃貸借契約/ その他:契約の際には、貸主指定の保証会社と保証委託契約を締結していただきます。/
現在オンライン内覧が可能です
オンライン内覧について詳しくはこちら
CHECK IT!
この物件についてもっと詳しく
そのまんまオフィス会員
3つのメリット
-

物件の
詳細情報の公開 -

新着物件を
お知らせ -

未公開物件を
ご紹介
おすすめ物件
-
CAN RENT
【Biz Feel Ichigaya(旧:ツボヤビル)/仲介手数料不要/原状回復工事無】市ヶ谷駅徒歩1分!約30坪の会議室造作・フル什器完備のセットアップオフィスが誕生!
千代田区九段南
32.37坪(107.02㎡)
会員限定
-
CLOSE
【No.2-3457 THE GATE GOTANDA EAST/仲介手数料不要】25坪!コンパクト×高機能オフィス!
品川区東五反田
24.67坪(81.56㎡)
会員限定
-
CLOSE
【新築セットアップオフィス/8名掛け会議室什器付き!】神保町エリアに70坪代セットアップオフィス誕生!
千代田区神田神保町
77.24坪(255.37㎡)








