
近年オンラインミーティングが主流となり大変便利な世の中になりましたが、一方で会議の時間が被ってしまう!スペースが足りない!という悩みを抱えていらっしゃいませんか?そのような悩みを解決できるオフィスが小伝馬町に登場しました。(2023年8月、貸室内リニューアル工事実施済)
<ポイント1:初期費用が低コスト>
・預託金無し!※1
・仲介手数料無料
・オフィス家具(デスク、チェア等)付
・インターネット引込済※2
そのため、比較的安価な初期費用にてご入居、すぐにお仕事を始めることができます。
<ポイント2:機能性に優れた空間>
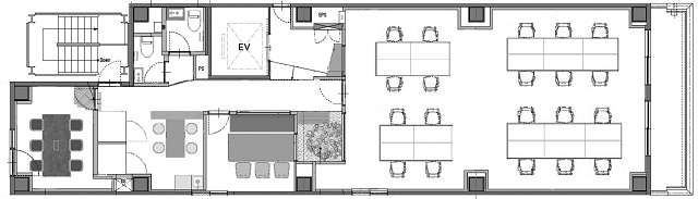
・合計4箇所打合せができる空間を設けました。
①天井までしっかりと間仕切りをした会議室です。貸室の一番奥にある会議室は、あえてガラスパーテーションではなく造作壁で間仕切りをすることで、廊下からの目線を気にせずに落ち着いて打合せをすることができます。
②同じく天井まで間仕切りをした会議室です。反対に執務室側からの光を取り込めるよう抜け感を意識してガラスパーテーションで区切りました。受付脇のグリーンのスペースが目に入るよう設計されていて、快適さとおしゃれさを兼ね備えた空間です。
③テレカンブースを2室設置!
④ラウンジ部分にデスクを設置。通りかかった社員の方が、立ち話のように気軽に話してほしいという意図で、あえて開けた場所にデスクを設けました。
<ポイント3:退去時の原状回復費ゼロ>
通常オフィス退去時にかかる原状回復費が、本物件は無料となります。※3
そのため、ご入居からご退去までのトータルコストを算出した場合、コストメリットのある物件となっております。
※1:与信状況によって預託をお願いする場合がございます。
※2:インターネットセットアップ費用をご負担いただきます。(契約時)
※3:現状変更した場合や破損等を除きます。
photographer:星野佑
OVERVIEW
- 物件No.
- 2-2801
- 募集期間
- ご成約まで
- 所在地
- 中央区日本橋小伝馬町
- 最寄駅
-
東京メトロ日比谷線
小伝馬町店 徒歩2分
JR総武線快速
馬喰町駅 徒歩5分
東京都交通局新宿線
馬喰横山駅 徒歩5分
- 面積
- 32.64坪 / 107.93㎡
- 会議室
- 6名掛け会議室×2
- 推奨人数
- 15~20人
- 構造
- 鉄骨造
- 規模
- 9階建
- 施工
- 1986年
- エレベーター
- 1基
- 天井の高さ
- ―
- 空調
- 個別空調
- トイレ
- 専用 男女別 洋式
- 床仕様
- OAフロア
- 賃料
- ご相談
- 共益費
- 賃料に含む
- 預託金
- 無
- 契約期間
- 2年
- 引き渡し時期
- ご相談
- その他
- 更新料:無/ 償却:無/ 礼金:無/ 契約形態:普通賃貸借契約/ その他:契約開始より12ヶ月間解約不可(12ヶ月間以内解約の場合、違約金が発生いたします)/原状回復義務無し(現状変更した場合や破損等を除く)/クリーニング費用をご負担いただきます(契約時)/貸主指定の清掃会社と貸室内の清掃契約を締結していただきます。/契約の際には、SFビルサポート株式会社会社と保証委託契約を締結していただきます。※与信状況によって預託をお願いする場合がございます。/
現在オンライン内覧が可能です
オンライン内覧について詳しくはこちら
CHECK IT!
この物件についてもっと詳しく
そのまんまオフィス会員
3つのメリット
-

物件の
詳細情報の公開 -

新着物件を
お知らせ -

未公開物件を
ご紹介


















