
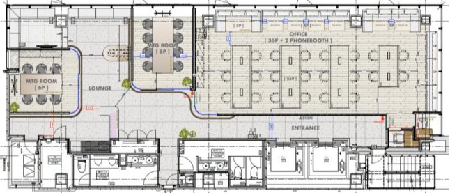
JR山手線【浜松町駅】から徒歩5分!国道15号沿い、金杉橋南交差点の角地に立地しており、視認性に長けた築浅セットアップが登場しました!エレベーターを降りてエントランスに入ると、オフィス全体を見渡せるほどの抜け感があり、3面窓がカーテンウォールとなっておりますので、室内は明るく開放的で風通しの良い空間が備わっています。WEBブースの設置やフリーアドレスのデスクなど時勢に添った設備を導入し、働きやすい環境を整えました。室内レイアウトは6名用会議室を1室、8名用会議室を1室、WEBブースを2室設置。窓際のリフレッシュコーナーではガラス越しから浜松町エリア一帯を望むことができ、リラックスできる空間が社員同士の活発なコミュニケーションを促します!さらに執務室内には固定デスクが25席+窓際執務席が11席と合計36席分の什器が設置されております。是非この機会に一度ご内見いかがでしょうか。お気軽にお申し付けくださいませ。
※掲載内容とお引渡し状態が異なる場合は現況を優先させていただきます。
OVERVIEW
- 物件No.
- 2-2838
- 募集期間
- ご成約まで
- 所在地
- 港区芝
- 最寄駅
-
東京都交通局浅草線
大門駅 徒歩6分
JR山手線
浜松町駅 徒歩7分
東京都交通局三田線
芝公園駅 徒歩6分
- 面積
- 69.85坪 / 230.91㎡
- 会議室
- 8名掛け会議室×1
6~8名掛け会議室×1
WEBフォンブース×2
- 推奨人数
- 36~44人
- 構造
- 鉄骨造
- 規模
- 11階建
- 施工
- 2023年
- エレベーター
- 2基(11人乗)
- 天井の高さ
- 2,700mm(一部スケルトン天井3,635mm以上)
- 空調
- 個別空調
- トイレ
- 専用 男女別 洋式
- 床仕様
- OAフロア(H=100mm)
- 賃料
- ご相談
- 共益費
- 賃料に含む
- 預託金
- 賃料の8ヶ月分
- 契約期間
- 2年
- 引き渡し時期
- 2026年7月1日予定
- その他
- 更新料:無/ 償却:無/ 礼金:無/ 契約形態:普通賃貸借契約/ その他:契約の際には、貸主指定の保証会社をご利用いただけます。 ※ご利用いただく場合、敷金は減額可能となります。/
現在オンライン内覧が可能です
オンライン内覧について詳しくはこちら
CHECK IT!
この物件についてもっと詳しく
そのまんまオフィス会員
3つのメリット
-

物件の
詳細情報の公開 -

新着物件を
お知らせ -

未公開物件を
ご紹介








