
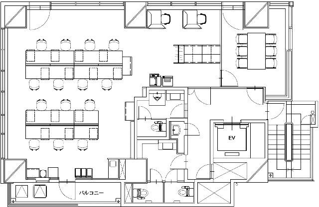
2024年1月竣工の築浅オフィスビルです。JR各線・東京メトロ銀座線【神田駅】徒歩4分、東京メトロ丸ノ内線【淡路町駅】・都営新宿線【小川町駅】、東京メトロ千代田線【新御茶ノ水駅】徒歩7分と複数路線利用可能な立地にございます。ビルは非接触ICカードリーダー方式のエントランス、天井高2,770mm、ガラスカーテンウォールと築浅ビルならではの高スペック。貸室は10~16名利用に最適な執務室、約6名利用可能な会議室、トイレ、給湯で構成されております。男性トイレは小便器1つ、個室1つ、女性トイレは個室2つと数が充実しておりますので、混みあうことなく快適にご利用いただけます。周辺には飲食店が多くランチや業務後の飲み会もお楽しみいただける環境です。是非お気軽にお問い合わせください!
※掲載中の図面はイメージレイアウトとなります。お引渡し状態が異なる場合は現況を優先させていただきます。
OVERVIEW
- 物件No.
- 2-2994
- 募集期間
- ご成約まで
- 所在地
- 千代田区内神田
- 最寄駅
-
JR山手線
神田駅 徒歩4分
東京メトロ丸ノ内線
淡路町駅 徒歩7分
東京都交通局新宿線
小川町駅 徒歩7分
- 面積
- 32.81坪 / 108.48㎡
- 会議室
- 6名掛け会議室×1
- 推奨人数
- 10~16人
- 構造
- 鉄筋コンクリート造
- 規模
- 9階建
- 施工
- 2024年
- エレベーター
- 1基(9人乗)
- 天井の高さ
- 2,770mm
- 空調
- 個別空調
- トイレ
- 専用 男女別 洋式
- 床仕様
- OAフロア(H=50mm)
- 賃料
- ご相談
- 共益費
- 賃料に含む
- 預託金
- 賃料の6ヶ月分
- 契約期間
- 2年
- 引き渡し時期
- 即日
- その他
- 更新料:新賃料の1ヶ月分/ 償却:賃料の1ヶ月分/ 礼金:無/ 契約形態:普通賃貸借契約/ その他:貸主指定の保証会社と保証委託契約を締結していただく場合がございます。/
現在オンライン内覧が可能です
オンライン内覧について詳しくはこちら
CHECK IT!
この物件についてもっと詳しく
そのまんまオフィス会員
3つのメリット
-

物件の
詳細情報の公開 -

新着物件を
お知らせ -

未公開物件を
ご紹介


















