
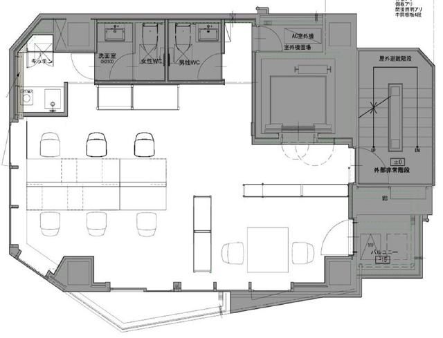
都営三田線・都営浅草線【三田駅】徒歩1分、JR山手線【田町駅】徒歩3分の立地に新たなセットアップオフィスが登場しました!2024年3月竣工のオフィスビルです!角地にあるため多方向(三面)から採光の取れる明るい貸室となっております。貸室内の内装は2名掛け打合せスペースに加え、キャビネットや壁付けの棚等の造作を設置。さらに執務室には6名用のオフィス什器も付帯しておりますのですぐに業務を稼働していただける環境を整えております。また、調光のできる照明やオートロック、来訪者のEV着床階が自動的に指定されるセキュリティシステム等、機能面も充実しているのが特徴です。15坪程度のコンパクトなサイズ感のオフィスですが、男女別トイレを完備しておりますので、女性の従業員様も安心してご利用いただけます。港区にて15坪前後のコンパクトなセットアップオフィスをお探しの企業様、イニシャルコストを抑えたいスタートアップ企業様、是非一度ご内見くださいませ。ご連絡をお待ちしております。
※掲載写真とお引渡し状態が異なる場合は現況を優先させていただきます。
photographer:星野 佑
OVERVIEW
- 物件No.
- 2-3135
- 募集期間
- ご成約まで
- 所在地
- 港区芝
- 最寄駅
-
東京都交通局三田線
三田駅 徒歩1分
東京都交通局浅草線
三田駅 徒歩1分
JR山手線
田町駅 徒歩3分
- 面積
- 14.75坪 / 48.76㎡
- 会議室
- 2名掛け打合せスペース×1
- 推奨人数
- 5~6人
- 構造
- 鉄骨造
- 規模
- 12階建
- 施工
- 2024年
- エレベーター
- 1基
- 天井の高さ
- ―
- 空調
- 個別空調
- トイレ
- あり 男女別
- 床使用
- ―
- 賃料
- 501,500円
- 共益費
- 賃料に含む
- 預託金
- 賃料の3ヶ月分
- 契約期間
- 2年
- 引き渡し時期
- 即日
- その他
- 更新料:新賃料の1ヶ月分/ 償却:無/ 礼金:無/ 契約形態:普通賃貸借契約/ その他:契約の際には、貸主指定の保証会社と保証委託契約を締結していただきます。/短期解約違約金あり/
現在オンライン内覧が可能です
オンライン内覧について詳しくはこちら
CHECK IT!
この物件についてもっと詳しく
そのまんまオフィス会員
3つのメリット
-

物件の
詳細情報の公開 -

新着物件を
お知らせ -

未公開物件を
ご紹介
















