
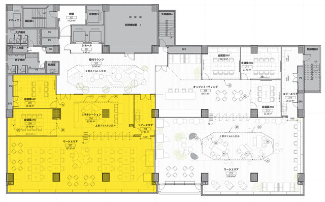
都営大江戸線【赤羽橋駅】徒歩3分の立地に大手設計事務所ゲンスラー監修の大型セットアップオフィスが登場しました!エントランスから東京タワーをモチーフにした赤と白の特徴的なデザインの意匠が皆さまをお出迎えします!エレベーター3基、女子トイレ個室3つ、男子トイレ個室2つ、小便器3つと大型ビルならではの充実した共用設備も魅力的です。また、当ビルの目玉は2階入居テナント様専用ラウンジです。社外のお客様や採用面接にいらっしゃった方の待機場所、簡単な社内ミーティングでもお使いいただけます。専有部分には、8名用会議室が1室、6名用会議室が1室、社内の仲間が自由闊達に意見交換できるオープンミーティングが間仕切りされております。執務室は48名座席を置ける想定となっており、窓面からは緑も眺めることでき気持ちよく業務に取り組めます。内見もいつでも可能ですのでお気軽にお申し付けください。
【リニューアル情報】
2025年1月、エントランス・エレベーターホール・共有廊下(住居)・貸室内リニューアル工事完了
OVERVIEW
- 物件No.
- 2-3176
- 募集期間
- ご成約まで
- 所在地
- 港区芝
- 最寄駅
-
東京都交通局大江戸線
赤羽橋駅 徒歩3分
東京都交通局三田線
芝公園駅 徒歩5分
東京都交通局浅草線
三田駅 徒歩10分
- 面積
- 112.85坪 / 373.09㎡
- 会議室
- 6名掛け会議室×1
8名掛け会議室×1
- 推奨人数
- 45~50人
- 構造
- 鉄骨鉄筋コンクリート造
- 規模
- 地下2階付12階建
- 施工
- 1990年
- エレベーター
- 事務所用:3基(乗用:2基、非常用:1基)、住居用:1基
- 天井の高さ
- 2,600mm
- 空調
- 個別空調
- トイレ
- 共用 男女別 洋式
- 床使用
- OAフロア
- 賃料
- ご相談
- 共益費
- 賃料に含む
- 預託金
- 賃料の6ヶ月分
- 契約期間
- 2年
- 引き渡し時期
- 即日
- その他
- 更新料:無/ 償却:無/ 礼金:無/ 契約形態:普通賃貸借契約/ その他:契約の際には、SFビルサポート株式会社と保証委託契約を締結していただきます。※与信状況によって預託金額が変動する場合がございます。※締結いただかない場合、敷金は賃料の12ヶ月分となります。/
現在オンライン内覧が可能です
オンライン内覧について詳しくはこちら
CHECK IT!
この物件についてもっと詳しく
そのまんまオフィス会員
3つのメリット
-

物件の
詳細情報の公開 -

新着物件を
お知らせ -

未公開物件を
ご紹介















