
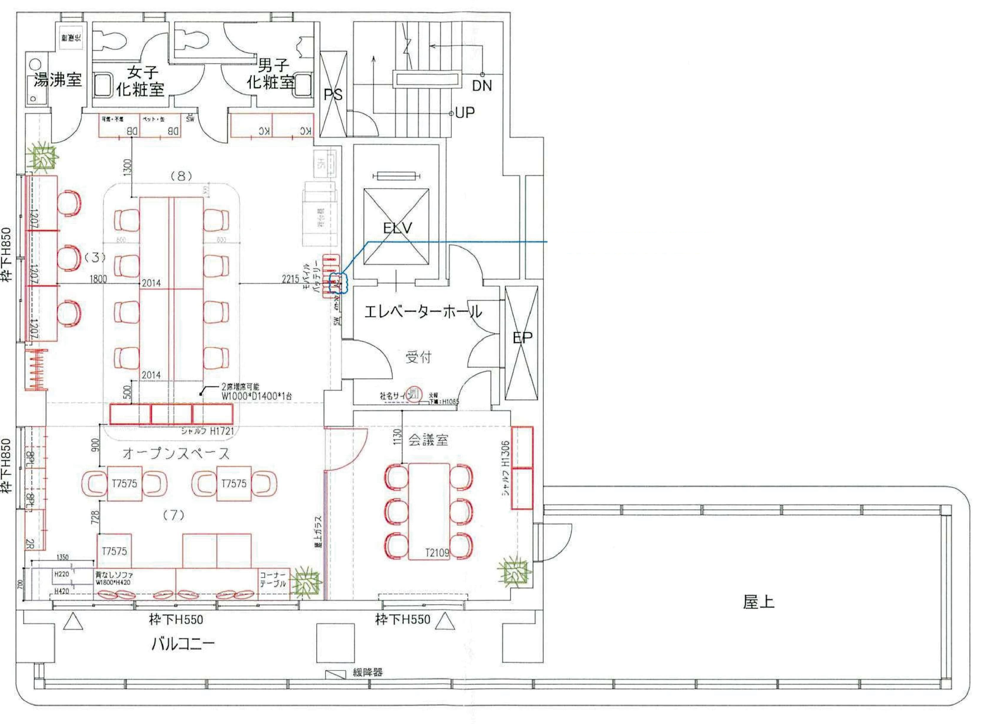
文教の街である、本郷・御茶ノ水エリアにセットアップオフィスが新たに誕生しました。オープンスペースには打ち合わせテーブルやソファブースを設け、フレキシブルに好きな場所で仕事や打ち合わせができる内装へリニューアル。木調を多く取り入れた温かみを感じるスタイリッシュさが魅力です。
OVERVIEW
- 物件No.
- 2-3286
- 募集期間
- ご成約まで
- 所在地
- 文京区本郷
- 最寄駅
-
東京メトロ丸ノ内線
本郷三丁目駅 徒歩6分
東京メトロ千代田線
湯島駅 徒歩9分
JR中央線快速
御茶ノ水駅 徒歩10分
- 面積
- 36.68坪 / 121.27㎡
- 会議室
- 6名掛け会議室×1
- 推奨人数
- 10~12人
- 構造
- 鉄骨鉄筋コンクリート造
- 規模
- 8階建
- 施工
- 1992年
- エレベーター
- 1基(11人乗)
- 天井の高さ
- 2,350mm
- 空調
- 個別空調
- トイレ
- あり 男女別 洋式
- 床仕様
- ―
- 賃料
- 806,960円
- 共益費
- 賃料に含む
- 預託金
- 賃料の12ヶ月分
- 契約期間
- 2年
- 引き渡し時期
- 即日
- その他
- 再契約料:無/ 償却:無/ 礼金:無/ 契約形態:定期建物賃貸借契約/ その他:契約の際には、貸主指定の保証会社と保証委託契約を締結していただきます。※与信状況によって預託金額が変動する場合がございます。/
現在オンライン内覧が可能です
オンライン内覧について詳しくはこちら
CHECK IT!
この物件についてもっと詳しく
そのまんまオフィス会員
3つのメリット
-

物件の
詳細情報の公開 -

新着物件を
お知らせ -

未公開物件を
ご紹介
おすすめ物件
-
CAN RENT
【本郷三丁目駅】徒歩2分!約70坪のフルセットアップオフィスの登場!
文京区本郷
73.48坪(242.91㎡)
-
CAN RENT
【No.2-3604 THE PORTAL SHIN-YOKOHAMA/仲介手数料不要】受付・ラウンジ・会議室・テレカンブース付セットアップオフィスが新横浜に登場!
横浜市港北区新横浜
69.95坪(231.24㎡)
会員限定
-
CAN RENT
【No.2-3431 THE PORTAL SHIN-YOKOHAMA/仲介手数料不要】~1フロア1テナントのプライベート感、開放感ある窓面~
横浜市港北区新横浜
87.03坪(287.71㎡)
会員限定


















