
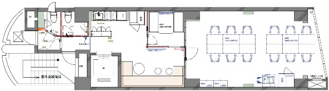
【渋谷エリアへのアクセスが至便】な【三軒茶屋エリア】にフル什器付きセットアップオフィスが誕生しました!(2025年1月、貸室内リニューアル工事完了)玉川通り沿いに位置し、駅までの道のりもシンプルであることから、通勤、また来訪者への案内も容易です。加えて、当ビル周辺にはLUUPのポートが複数あるのも移動手段として嬉しいポイントです。エントランス、室内ともに既存設備を解体し、エントランスはデザイン性の高い仕上がり、かつ明るい空間となり、従業員の働く意欲が上昇、取引先からの印象もうなぎ上りでしょう。室内は、受付、ラウンジスペース、会議室、執務室で区切り、お洒落なデザインで内装を仕上げ、各所に什器も設置しております。ラウンジスペースは、オンタイムは仕事の環境を変える場として、オフタイムでは備え付けの大型モニターがあるため、従業員同士の仲を深める場等、様々なシーンでご使用ください。テレカンブースは2つ設置し、業務の効率をサポートし、天井高3,000mm超、ハイサッシが設置された執務室は採光に溢れ、仕事への活力を生み出してくれます。極めつきはハイサッシからの眺望。フロアによっては東京タワーも眺められる素晴らしい景観が待っております。また三宿の地の利ということもあり、美味しいランチ処も点在しております。是非、当ビルの魅力を現地でお確かめいただけると何よりです。ご検討の程、よろしくお願いします。
photographer:星野 佑
OVERVIEW
- 物件No.
- 2-3330
- 募集期間
- ご成約まで
- 所在地
- 世田谷区太子堂
- 最寄駅
-
東急田園都市線
三軒茶屋駅 徒歩8分
東急田園都市線
池尻大橋駅 徒歩10分
東急世田谷線
三軒茶屋駅 徒歩12分
- 面積
- 23.81坪 / 78.72㎡
- 会議室
- 4名掛け会議室×1
- 推奨人数
- 10~12人
- 構造
- 鉄骨鉄筋コンクリート造
- 規模
- 8階建
- 施工
- 1992年
- エレベーター
- 1基
- 天井の高さ
- 3,010mm
- 空調
- 個別空調
- トイレ
- 専用 男女別 洋式
- 床使用
- OAフロア
- 賃料
- ご相談
- 共益費
- 賃料に含む
- 預託金
- 無
- 契約期間
- 2年
- 引き渡し時期
- 即日
- その他
- 更新料:無/ 償却:無/ 礼金:無/ 契約形態:普通賃貸借契約/ その他:契約開始より12ヶ月間解約不可(12ヶ月間以内解約の場合、違約金が発生いたします)/原状回復義務なし(現状変更した場合や破損等を除く)/クリーニング費用をご負担いただきます(入居時)/貸主指定の清掃会社と貸室内の清掃契約を締結していただきます。/契約の際には、貸主指定の保証会社と保証委託契約を締結していただきます。※与信状況によって預託をお願いする場合がございます。/
360°CAMERA
現在オンライン内覧が可能です
オンライン内覧について詳しくはこちら
CHECK IT!
この物件についてもっと詳しく
そのまんまオフィス会員
3つのメリット
-

物件の
詳細情報の公開 -

新着物件を
お知らせ -

未公開物件を
ご紹介


















