
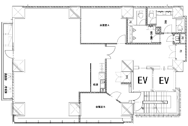
東京メトロ銀座線・南北線が利用可能な【溜池山王駅】11番出口まで徒歩1分、東京メトロ千代田線が利用可能な【赤坂駅】2番出口まで徒歩7分の立地にございます。2025年4月に竣工予定の新築物件、9階~12階は約51坪あり、6名用会議室2室付のセットアップオフィスとなっております。室内はOAフロアになっており、天井高は2,700mmあるので、開放感のある室内です!上層階は眺望が抜けており、採光が取れるので明るい貸室となっております。赤坂・虎ノ門・六本木周辺でセットアップオフィスをお探しの方にはおすすめです!是非、一度お問合せくださいませ。
※会議室・執務室の什器の設置をご希望の場合は、別途ご相談可能です。
※掲載写真と現況のお引渡し状態が異なる場合は、現況を優先させていただきます。
photographer:星野 佑
OVERVIEW
- 物件No.
- 2-3332
- 募集期間
- ご成約まで
- 所在地
- 港区赤坂
- 最寄駅
-
東京メトロ銀座線
溜池山王駅 徒歩1分
東京メトロ南北線
溜池山王駅 徒歩1分
東京メトロ千代田線
赤坂駅 徒歩7分
- 面積
- 51.5坪 / 170.273㎡
- 会議室
- 6名掛け会議室×2
- 推奨人数
- 20~25人
- 構造
- 鉄筋コンクリート造
- 規模
- 地下1階付12階建
- 施工
- 2025年
- エレベーター
- 2基
- 天井の高さ
- 2,700mm
- 空調
- 個別空調
- トイレ
- 専用 男女別 洋式
- 床使用
- OAフロア(H=100mm)
- 賃料
- 1,390,500円
- 共益費
- 賃料に含む
- 預託金
- 賃料の6ヶ月分
- 契約期間
- 2年
- 引き渡し時期
- 即日
- その他
- 更新料:無/ 償却:無/ 礼金:無/ 契約形態:普通賃貸借契約/ その他:契約の際には、SFビルサポート株式会社と保証委託契約を締結していただきます。※与信状況によって預託金額が変動する場合がございます。/
現在オンライン内覧が可能です
オンライン内覧について詳しくはこちら
CHECK IT!
この物件についてもっと詳しく
そのまんまオフィス会員
3つのメリット
-

物件の
詳細情報の公開 -

新着物件を
お知らせ -

未公開物件を
ご紹介


















