
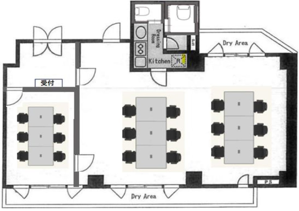
東京メトロ千代田線【乃木坂駅】徒歩1分、東京メトロ日比谷線・都営大江戸線【六本木駅】徒歩9分と、複数路線・複数駅利用可能な利便性のよい立地です。また、近隣には飲食店舗が多く点在しており、ランチ環境も非常に整っております。執務室には、12名様が使用できる机・椅子が設置されているほか、6名掛けのモニター付き会議室・受付等の内装造作も施されているため、入居までの内装造作工事期間や費用を削減、ご入居までにかかる手間を出来る限り省く事で本業に専念いただくことができます。約26坪とコンパクトながら、男女別トイレも完備しておりますので女性も安心してご利用可能です!是非一度ご内覧ください。
OVERVIEW
- 物件No.
- 2-3408
- 募集期間
- ご成約まで
- 所在地
- 港区六本木
- 最寄駅
-
東京メトロ千代田線
乃木坂駅 徒歩1分
東京都交通局大江戸線
六本木駅 徒歩5分
東京メトロ日比谷線
六本木駅 徒歩10分
- 面積
- 26.95坪 / 89.1㎡
- 会議室
- 6名掛け会議室×1
- 推奨人数
- 10~12人
- 構造
- 鉄骨鉄筋コンクリート造
- 規模
- 地下1階付16階建
- 施工
- 2006年
- エレベーター
- 1基
- 天井の高さ
- ―
- 空調
- 個別空調
- トイレ
- 専用 男女別 洋式
- 床使用
- -
- 賃料
- 637,000円
- 共益費
- 賃料に含む
- 預託金
- 賃料の4ヶ月分
- 契約期間
- 2年
- 引き渡し時期
- 即日
- その他
- 更新料:新賃料の1ヶ月分/ 償却:無/ 礼金:無/ 契約形態:普通賃貸借契約/ その他:契約の際には、貸主指定の保証会社と保証委託契約を締結していただきます。/
現在オンライン内覧が可能です
オンライン内覧について詳しくはこちら
CHECK IT!
この物件についてもっと詳しく
そのまんまオフィス会員
3つのメリット
-

物件の
詳細情報の公開 -

新着物件を
お知らせ -

未公開物件を
ご紹介


















