
東京メトロ日比谷線、東西線【茅場町駅】徒歩1分!東京メトロ東西線、銀座線、浅草線【日本橋駅】までも徒歩7分と、複数路線が利用できるアクセス面が大変便利なオフィスです◎周辺環境は、飲食店やカフェが豊富で、美味しいランチを楽しめる活気のあるビジネス街です!1階にはシェアラウンジ・会議室等があり、屋上階にはルーフテラスがあるなど、共用施設が充実しております!また、外観は多摩産の杉をはじめとした、木を取り入れたデザインとなっていることも魅力の1つです。貸室内には会議室が1室あり、しかも什器付きとなっていますので、引越しにかかる期間を短縮し事業をスムーズに開始することができます!またご希望に応じて、オーナー様負担にて会議室を2室(合計3室)まで増設可能です。(※フル什器付き・フルセットアッププランもご相談可能です。詳細はお問い合わせください。)ZEB Ready認証、BELS評価最高ランク取得による環境配慮型のビルであることもポイントです。是非お気軽にお問い合わせください!
※現在リニューアル内容を調整しております。掲載中の画像はイメージCGとなります。リニューアル内容が変更になる場合がございます。また、お引渡し状態が異なる場合、現況を優先させていただきます。
東京メトロ日比谷線、東西線【茅場町駅】徒歩1分!東京メトロ東西線、銀座線、浅草線【日本橋駅】までも徒歩7分と、複数路線が利用できるアクセス面が大変便利なオフィスです◎周辺環境は、飲食店やカフェが豊富で、美味しいランチを楽しめる活気のあるビジネス街です!1階にはシェアラウンジ・会議室等があり、屋上階にはルーフテラスがあるなど、共用施設が充実しております!また、外観は多摩産の杉をはじめとした、木を取り入れたデザインとなっていることも魅力の1つです。貸室内には会議室が1室あり、しかも什器付きとなっていますので、引越しにかかる期間を短縮し事業をスムーズに開始することができます!またご希望に応じて、オーナー様負担にて会議室を2室(合計3室)まで増設可能です。(※フルセットアッププランもご相談可能です。詳細はお問い合わせください。)ZEB Ready認証、BELS評価最高ランク取得による環境配慮型のビルであることもポイントです。是非お気軽にお問い合わせください!
※現在リニューアル内容を調整しております。掲載中の画像はイメージCGとなります。リニューアル内容が変更になる場合がございます。また、お引渡し状態が異なる場合、現況を優先させていただきます。
OVERVIEW
- 物件No.
- 2-3418
- 募集期間
- ご成約まで
- 所在地
- 中央区日本橋茅場町
- 最寄駅
-
東京メトロ日比谷線
茅場町駅 徒歩1分
東京メトロ東西線
茅場町駅 徒歩1分
東京メトロ銀座線
日本橋駅 徒歩7分
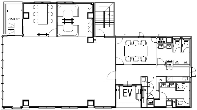
- 面積
- 57.34坪 / 189.58㎡
- 会議室
- 6名掛け会議室×1
- 推奨人数
- 20~25人
- 構造
- 鉄骨造
- 規模
- 9階建
- 施工
- 2025年
- エレベーター
- 1基
- 天井の高さ
- ―
- 空調
- 個別空調
- トイレ
- 専用 男女別 洋式
- 床使用
- OAフロア(H=29mm)
- 賃料
- ご相談
- 共益費
- 賃料に含む
- 預託金
- ご相談
- 契約期間
- ―
- 引き渡し時期
- 2025年11月1日予定
- その他
- 再契約料:無/ 償却:無/ 礼金:無/ 契約形態:定期建物賃貸借契約/ 契約期間:年相談/ その他:契約の際には、貸主指定の保証会社をご利用いただけます。/
現在オンライン内覧が可能です
オンライン内覧について詳しくはこちら
CHECK IT!
この物件についてもっと詳しく
そのまんまオフィス会員
3つのメリット
-

物件の
詳細情報の公開 -

新着物件を
お知らせ -

未公開物件を
ご紹介















